2,880 ft²
$345 per ft²
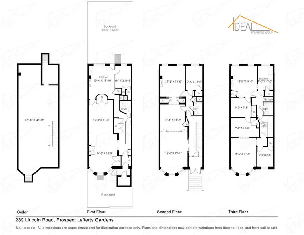
8 rooms
5 beds
3 baths
Two-family home
- Prospect Lefferts Gardens
Resale
Reported sale
Sold on 6/27/2013
Not yet verified by closing records
Seller's agent
This home has been saved by 40 users.
Listing by Ideal Properties Group, Limited Liability Broker, 1 Pierrepont Plz, Brooklyn, NY 11201 | Brokerage Listing ID: S90124570
Common charges
Not applicable
Estimated payment
$5,403/mo
Legal disclaimerAll calculations are estimates provided by StreetEasy for informational purposes only. Actual amounts or financing terms may vary. Please contact your mortgage provider for specifics.Taxes
$350/mo
Tax abatement
No info
About
Seller’s agent
Description
289 Lincoln Road, Prospect Lefferts Gardens. Carved limestone, wrought iron, and original wood detail define this 1905 charmer. Measuring 20x48 on a 102 lot, this spacious three story, two family home is located in lovely Prospect Lefferts Gardens. Follow inlaid floors through the triple parlor under tall oak archways reaching for 12' ceilings, ample closets, and pocket doors.
Policies
Sorry, policy info isn’t available right now. Check back later.
Home features
Private outdoor space
Garden
Building amenities
Services and facilities
No info on services and facilities
Wellness and recreation
No info on wellness and recreation
Shared outdoor space
Roof deck
About the building
289 Lincoln Road
289 Lincoln Road, Brooklyn, NY 11225
2 units
2 stories
1901 built
For sale
0 available units for saleFor rent
0 available units for rentDocuments and permits
View documents and permitsProperty history
- Price change: No changes
- Days on market: 65 daysThis is the number of days the listing has been on StreetEasy.
| Date | Price | Event |
|---|---|---|
7/6/2017 | $995,000 | Sold by Ideal Properties Group |
6/27/2013 | $995,000 | No longer available |
4/23/2013 | $995,000 | Listed by Ideal Properties Group |
Past listing photos
Sign in to take a closer look at how this home compares to similar homes.
Explore Prospect Lefferts Gardens
Transit
| Location | Distance |
|---|---|
25at Sterling St | 0.15 miles |
25at Winthrop St | 0.35 miles |
25at President St | 0.46 miles |
BQSat Prospect Park | 0.48 miles |
3at Nostrand Av | 0.57 miles |











































































































