600 ft²
$1,165 per ft²
1 room
1 bed
1 bath
Co-op
- Lincoln Square
Resale
reported sale
Sold on 8/19/2025
Not yet verified by closing records
Seller's agents
This home has been saved by 20 users.
Listing by Oxford Property Group, Limited Liability Broker, 401 New Karner Road, Albany, NY 12205
Maintenance fees
$1,228/mo
Estimated payment
$4,827/mo
Legal disclaimerAll calculations are estimates provided by StreetEasy for informational purposes only. Actual amounts or financing terms may vary. Please contact your mortgage provider for specifics.Taxes
Included in maintenance fees
Tax abatement
No info
About
Seller’s agent
description
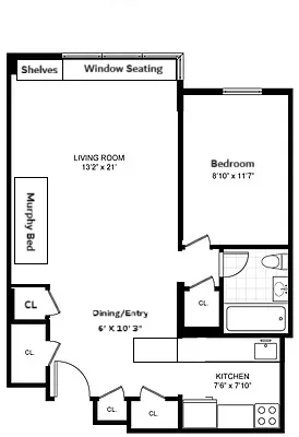
1 Bedroom! Low maintenance!
5 CLOSETS!
Custom Murphy Bed!
Hue Custom lighting controls
Custom Window seat!
New noise reducing casement windows being installed this summer! no assessment!
Come check out this recently renovated 1 bedroom. This sought after unit at the Coliseum apartments is facing super quiet 60th street. The owner has lovingly updated this extra large living space with enough space to entertain 20+ people.
Policies
Co-purchase allowed
Gifts allowed
Guarantors accepted
Parents buying allowed
Pets allowed
Cats and dogs allowed
Sublets allowed
Home features
No info on home features
Building amenities
Services and facilities
Bike room
Doorman
Full-time
Elevator
Laundry in building
Live-in super
Package room
Parking
Garage
Storage space
Wellness and recreation
Gym
Shared outdoor space
No info on shared outdoor space
About the building
30 West 60th Street
30 West 60th Street, New York, NY 10023
608 units
14 stories
1957 built
For sale
4 available units for saleFor rent
0 available units for rentDocuments and permits
View documents and permitsProperty history
- Price Change: No changes
- Days on market: 17 daysThis is the number of days the listing has been on StreetEasy.
| Date | Price | Event |
|---|---|---|
8/19/2025 | $699,000 | Sold by Oxford Property Group |
5/10/2025 | $699,000 | In contract |
4/23/2025 | $699,000 | Listed by Oxford Property Group |
11/30/2022 | $615,000 | |
9/6/2022 | $615,000 |
Past listing photos
Sign in to take a closer look at how this home compares to similar homes.
Explore Lincoln Square
Transit
| Location | Distance |
|---|---|
ABCD1at 59th St–Columbus Circle | under 500 feet |
NRWat 57th St–7th Av | 0.31 miles |
1at 66th St–Lincoln Center | 0.34 miles |
BDEat 7th Av | 0.39 miles |
CEat 50th St | 0.46 miles |
About Lincoln Square
Rental prices shown are base rent before any fees. Visit listings for cost and fees breakdown.
SalesMedian asking price
1 bed
$950K
RentalsMedian asking base rent
1 bed
$5,300
Named after and defined by the Lincoln Center for the Performing Arts, Lincoln Square is home to the New York Philharmonic, the New York City Ballet and the Metropolitan Opera, among many other cultural institutions. The neighborhood blends the prewar architecture and and style of the Upper West Side with modern, tall residential buildings. Great subway access at Columbus Circle and proximity to Midtown make this neighborhood popular with those looking to be in the center of it all.
Learn more about Lincoln Square










































































































































