$989,000
For Sale
No longer available 10/9/2025
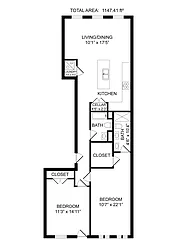
1,165 ft²
$848 per ft²
2 rooms
2 beds
2 baths
House
- Hoboken
Seller's agent
Bruno Mele
Liberty Realty
This home has been saved by 5 users.
Listing by Liberty Realty | MLS #: 250020274
Common charges
Not applicable
Estimated payment
$5,017/mo
Legal disclaimerAll calculations are estimates provided by StreetEasy for informational purposes only. Actual amounts or financing terms may vary. Please contact your mortgage provider for specifics.Taxes
No info
Tax abatement
No info
About
Seller’s agent
description
Welcome to this beautifully refreshed 2-bedroom, 2-bath 1,165 sft condo at 303 Monroe St that offers an exceptional living experience characterized by natural light and a spacious layout. The open design seamlessly integrates high-end appliances into a modern kitchen, making it perfect for both cooking and entertaining.
Policies
Sorry, policy info isn’t available right now. Check back later.
Home features
Central air
Dishwasher
Washer/dryer
Building amenities
Services and facilities
Parking
Storage space
Wellness and recreation
No info on wellness and recreation
Shared outdoor space
No info on shared outdoor space
About the building
303 Monroe Street
303 Monroe Street, Hoboken, NJ 07030
- units
- stories
- built
Property history
- Price Change: No changes
- Days on market: 8 daysThis is the number of days the listing has been on StreetEasy.
| Date | Price | Event |
|---|---|---|
10/9/2025 | $989,000 | No longer available |
10/1/2025 | $989,000 | Listed by Liberty Realty |
5/12/2025 | $845,000 | |
4/14/2025 | $845,000 | Price decreased by 6% |
4/14/2025 | $899,000 | Price increased by 6% |
Sign in to take a closer look at how this home compares to similar homes.
Explore Hoboken
Transit
| Location | Distance |
|---|---|
HBLRat 2nd Street | 0.23 miles |
HBLRat 9th Street/Congress St | 0.5 miles |
HBLRPATHat Hoboken Terminal | 0.74 miles |
PATHat Pavonia/Newport Station | 1.06 miles |
PATHat Journal Square Station | 1.43 miles |






























































































































































