$6,300
For Rent
Base rent only. For total monthly price and additional fees, see .
No longer available 5/15/2024
- ft²
5 rooms
3 beds
2 baths
Condo
- Cobble Hill
Under NYC law, you can't be charged a broker fee if you didn't hire a broker.
Listed By
This home has been saved by 84 users.
Listing by Compass, Corporate Broker, 514 2nd Street, Brooklyn, NY 11215
Unavailable
No longer available on 5/15/2024
Days on market
6 days
Last price change
No changes
About
Available for rent this summer **7/1 through mid-August**
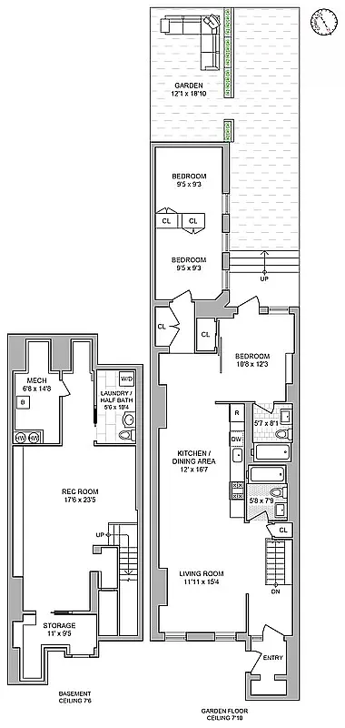
Located on tree-lined Warren Street in Cobble Hill, this expansive 2 bedroom + rec-room is available FURNISHED for rent this summer.
This duplex apartment is large in scale and features a floor-through garden level and lower level rec room which spans over 1900+ square feet and nearly 300sf of private outdoor space.
Policies
Sorry, policy info isn’t available right now. Check back later.
Home features
Dishwasher
Fireplace
Decorative
Furnished
Hardwood floors
Private outdoor space
Garden
View
Garden
Washer/dryer
Building amenities
Services and facilities
Laundry in building
Wellness and recreation
No info on wellness and recreation
Shared outdoor space
No info on shared outdoor space
About the building
304 Warren Street
304 Warren Street, Brooklyn, NY 11201
3 units
4 stories
1900 built
Property history
Prices shown are base rent only. For total monthly price and additional fees, see .
| Date | Base rent | Event |
|---|---|---|
8/14/2024 | $6,300 | No longer available |
5/15/2024 | $6,300 | Temporarily off market |
5/9/2024 | $6,300 | Listed by Compass |
Sign in to take a closer look at how this home compares to similar homes.
Explore Cobble Hill
Transit
| Location | Distance |
|---|---|
FGat Bergen St | under 500 feet |
FGat Carroll St | 0.33 miles |
ACGat Hoyt & Schermerhorn | 0.42 miles |
R2345at Borough Hall/Court St | 0.47 miles |
23at Hoyt St | 0.5 miles |
About Cobble Hill
Rental prices shown are base rent before any fees. Visit listings for cost and fees breakdown.
SalesMedian asking price
3 beds
$4.7M
RentalsMedian asking base rent
3 beds
$7,950
Cobble Hill is a beautiful, historic neighborhood with some of the borough's most expensive real estate. Despite the abundance of seven-figure homes, Cobble Hill has small-town vibe evident in the mom-and-pop stores and Italian influences that dot Court Street. Walk down the sunny commercial strip and you'll pass the local butcher, the baker and the fishmonger — all family-run and equally popular among local residents and foodies from far and wide.
On the side streets, the homes tend to be large brick townhouses and brownstones owned by single families, with well-kept facades and window boxes. This is a neighborhood where homeownership is a luxury, and residents take that responsibility to heart. The blocks are clean, the community associations active, and the lifestyle warm and genteel.
Similar homes
Prices shown are base rent only and don't include any fees. Visit each listing to see a complete cost breakdown.
Similar Homes looks at ad spend and other factors like location, price, and number of beds and baths.



















































































































