$6,600,000
For Sale
No longer available 5/31/2018
3,700 ft²
$1,783 per ft²
11 rooms
6 beds
5+ baths
Two-family home
- Sutton Place
Seller's agent
This home has been saved by 72 users.
Listing by Douglas Elliman, Limited Liability Broker, 575 Madison Avenue -, New York, NY 10022 | Brokerage Listing ID: 2748836
Common charges
Not applicable
Estimated payment
$34,983/mo
Legal disclaimerAll calculations are estimates provided by StreetEasy for informational purposes only. Actual amounts or financing terms may vary. Please contact your mortgage provider for specifics.Taxes
$2,908/mo
Tax abatement
No info
About
Seller’s agent
description
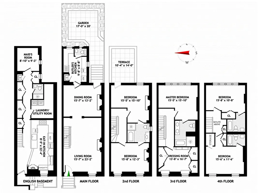
This private, beautifully renovated, 6 bedroom, 5 bathroom home is one of those rare townhouses that integrates impeccable taste with warmth and comfort. As you enter the English basement you will be confronted with a perfectly renovated oversized kitchen, generous sized maids room, full bathroom and a spacious laundry room.
Policies
Sorry, policy info isn’t available right now. Check back later.
Home features
Dishwasher
Private outdoor space
Garden
Building amenities
Services and facilities
Laundry in building
Wellness and recreation
No info on wellness and recreation
Shared outdoor space
No info on shared outdoor space
About the building
31 Sutton Place
31 Sutton Place, New York, NY 10022
1 unit
3 stories
1899 built
For sale
0 available units for saleFor rent
0 available units for rentDocuments and permits
View documents and permitsProperty history
- Price Change: ↓ $400,000 (-5.7%) on 11/9/17
- Days on market: 395 daysThis is the number of days the listing has been on StreetEasy.
| Date | Price | Event |
|---|---|---|
7/30/2021 | $5,600,000 | |
2/5/2020 | $6,490,000 | Price decreased by 2% |
2/5/2020 | $6,600,000 | |
12/13/2019 | $6,600,000 | |
8/29/2019 | $6,600,000 |
Past listing photos
Sign in to take a closer look at how this home compares to similar homes.
Explore Sutton Place
Transit
| Location | Distance |
|---|---|
NRW456at Lexington Av/59th St | 0.43 miles |
EM6at Lexington Av–53rd St | 0.49 miles |
FQat Lexington Av/63rd St | 0.58 miles |
Qat 72nd St | 0.6 miles |
EM6at 51st St | 0.63 miles |
































































































































































































