- ft²
1 room
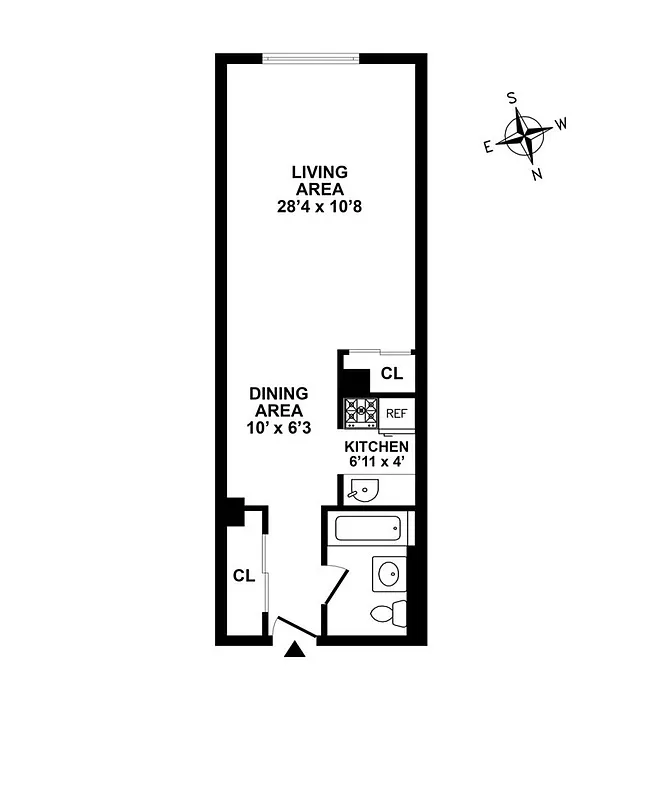
Studio
1 bath
Co-op
- Hell's Kitchen
Resale
recorded sale
Sold on 5/28/2024
Verified by closing records
Last listed for $360,000
Seller's agents
This home has been saved by 119 users.
Listing by Corcoran, Limited Liability Broker, 220 West 19th Street, New York, NY 10011
Maintenance fees
$778/mo
Estimated payment
$2,646/mo
Legal disclaimerAll calculations are estimates provided by StreetEasy for informational purposes only. Actual amounts or financing terms may vary. Please contact your mortgage provider for specifics.Taxes
Included in maintenance fees
Tax abatement
No info
About
Sellerâs agent
description
Welcome Home! This amazing Hell's Kitchen apartment is sun-flooded with beautiful southern exposure facing tree-lined West 54th street. This well-proportioned apartment is spacious enough to afford areas for sleeping, living, and dining. The apartment has a separate updated kitchen with white cabinetry and appliances including, refrigerator, microwave, gas range, a brand new dishwasher and a colorful backsplash.
Policies
Co-purchase allowed
Gifts allowed
Guarantors accepted
Pets allowed
Cats only (no dogs)
Home features
No info on home features
Building amenities
Services and facilities
Bike room
Elevator
Live-in super
Wellness and recreation
No info on wellness and recreation
Shared outdoor space
No info on shared outdoor space
About the building
317 West 54th Street
317 West 54th Street, New York, NY 10019
39 units
5 stories
1980 built
For sale
0 available units for saleFor rent
0 available units for rentDocuments and permits
View documents and permitsProperty history
- Price Change: â $10,000 (-2.7%) on 11/10/23
- Days on market: 259 daysThis is the number of days the listing has been on StreetEasy.
| Date | Price | Event |
|---|---|---|
5/28/2024 | $345,000 | Sold by Corcoran |
3/21/2024 | $360,000 | In contract |
11/10/2023 | $360,000 | Price decreased by 3% |
11/10/2023 | $370,000 | Listed by Corcoran |
9/19/2023 | $370,000 | In contract |
Past listing photos
Sign in to take a closer look at how this home compares to similar homes.
Explore Hell's Kitchen
Transit
| Location | Distance |
|---|---|
ABCD1at 59th StâColumbus Circle | 0.12 miles |
BDEat 7th Av | 0.2 miles |
CEat 50th St | 0.21 miles |
NRWat 57th Stâ7th Av | 0.22 miles |
1at 50th St | 0.27 miles |


































































































