$688,000
For Sale
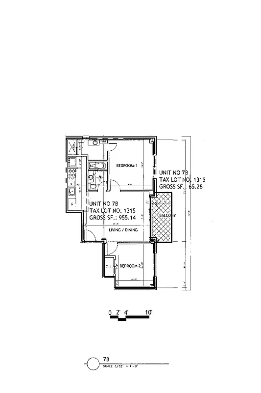
955 ft²
$720 per ft²
5 rooms
2 beds
2 baths
Hybrid
- Flushing
Resale
Listing by CPRE ELITE INC, Real Estate Principal Office, 3712 Prince Street Ste, Flushing, NY 11354
Listing updated in the last 2 days
Common charges
$576/mo
Estimated payment
$4,146/mo
Legal disclaimerAll calculations are estimates provided by StreetEasy for informational purposes only. Actual amounts or financing terms may vary. Please contact your mortgage provider for specifics.Taxes
No info
Tax abatement
No info
About
Seller’s agent
description
A Calm Retreat in the Center of Flushing
955 sqt spacious living space+65 sqft private balcony+ in-unit washer and dryer combo+Private garage parking.
The unit boasts a spacious and thoughtfully designed layout 2-bedroom, 2-bath condo offers a rare sense of calm while being steps from everything Flushing has to offer. The layout flows into a sun-lit living space that opens to a private balcony facing east and south, creating an ideal indoor-outdoor setting for everyday living.
Policies
Sorry, policy info isn’t available right now. Check back later.
Home features
Dishwasher
Hardwood floors
Private outdoor space
Balcony, Terrace
View
City
Washer/dryer
Building amenities
Services and facilities
Elevator
Parking
Garage
Wellness and recreation
No info on wellness and recreation
Shared outdoor space
No info on shared outdoor space
About the building
31-38 137th Street
31-38 137th Street, Flushing, NY 11354
16 units
10 stories
2007 built
For sale
2 available units for saleFor rent
0 available units for rentDocuments and permits
View documents and permitsProperty history
- Price Change: No changes
- Days on market: 0 daysThis is the number of days the listing has been on StreetEasy.
| Date | Price | Event |
|---|---|---|
1/15/2026 | $688,000 | Listed by CPRE ELITE INC |
Sign in to take a closer look at how this home compares to similar homes.
Explore Flushing
Transit
| Location | Distance |
|---|---|
7at Flushing–Main St | 0.6 miles |
LIRRat Flushing Main Street | 0.73 miles |
LIRRat Murray Hill | 0.97 miles |
7at Mets–Willets Point | 1.2 miles |
LIRRat Mets–Willets Point | 1.28 miles |




























































































































































































