$3,650
For Rent
Base rent only. For total monthly price and additional fees, see .
$3,346 net effective base rent
1 month free
12-month lease
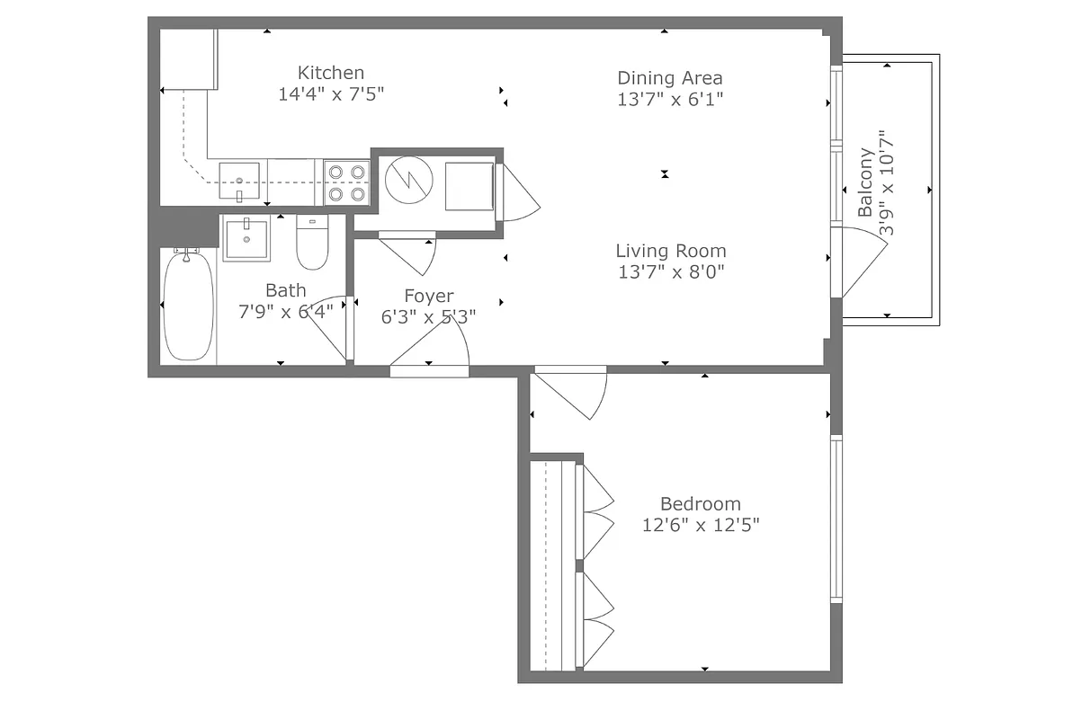
- ft²
3 rooms
1 bed
1 bath
Rental unit
- Astoria
Under NYC law, you can't be charged a broker fee if you didn't hire a broker.
Listed By
This home has been saved by 3 users.
Listing by NY Space Finders Inc., Corporate Broker, 31-19 Newtown Avenue, Astoria, NY 11102
Available
1/1/2026
Days on market
Listed today
Last price change
No changes
About
Brand New Development in Prime Astoria – Broadway & Steinway
Welcome to this stunning new construction in the heart of Astoria! Spacious 1-bedroom apartments featuring in-unit laundry, private balconies, and rooftop access. Perfectly situated near Broadway & Steinway Street—steps from amazing restaurants, cafés, gyms, and shops.
Policies
Sorry, policy info isn’t available right now. Check back later.
Home features
Central air
Dishwasher
Private outdoor space
Balcony
View
City
Washer/dryer
Building amenities
Services and facilities
Doorman
Virtual
Elevator
Laundry in building
Wellness and recreation
No info on wellness and recreation
Shared outdoor space
Roof deck
About the building
32-24 Steinway Street
32-24 Steinway Street, Astoria, NY 11103
10 units
6 stories
1930 built
Property history
Prices shown are base rent only. For total monthly price and additional fees, see .
| Date | Base rent | Event |
|---|---|---|
12/28/2025 | $3,650 | Listed by NY Space Finders Inc. |
Sign in to take a closer look at how this home compares to similar homes.
Explore Astoria
Transit
| Location | Distance |
|---|---|
MRat Steinway St | under 500 feet |
MRat 46th St | 0.31 miles |
NWat Broadway | 0.37 miles |
NWat 36th Av | 0.53 miles |
NWat 30th Av | 0.58 miles |
About Astoria
Rental prices shown are base rent before any fees. Visit listings for cost and fees breakdown.
SalesMedian asking price
1 bed
$699K
RentalsMedian asking base rent
1 bed
$2,985
Home to some 160,000 residents, Astoria is a bustling neighborhood long known for its great ethnic food, busy commercial thoroughfares and charming single-family homes. Astoria's quick commute into Midtown Manhattan (15 minutes on the N, R, W, or M) and reasonable home prices, however, have recently begun to attract newcomers. New developments are now cropping up and changing the landscape, too. Now, the neighborhood's historic single-family homes and postwar co-op buildings are interspersed with condominiums and upscale rentals.
Learn more about AstoriaSimilar homes
Prices shown are base rent only and don't include any fees. Visit each listing to see a complete cost breakdown.
Similar Homes looks at ad spend and other factors like location, price, and number of beds and baths.
































































































































































