View this home virtually
$1,795,000
For Sale
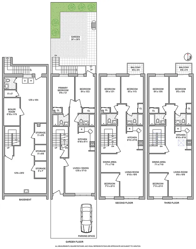
3,120 ft²
$575 per ft²
15 rooms
8 beds
6.5 baths
Three-family home
- Prospect Lefferts Gardens
Resale
This home has been saved by 2 users.
Listing by Compass, Corporate Broker, 212 Court Street, Brooklyn, NY 11201
Listing updated in the last 2 days
Common charges
Not applicable
Estimated payment
$10,285/mo
Legal disclaimerAll calculations are estimates provided by StreetEasy for informational purposes only. Actual amounts or financing terms may vary. Please contact your mortgage provider for specifics.Taxes
$1,001/mo
Tax abatement
No info
About
Seller’s agent
description
Investor Opportunity | Modern Three-Family with Parking | Prospect-Lefferts Gardens
Modern three-family townhouse offering strong in-place income with significant upside. The property consists of two 3-bedroom, 2-bath apartments and one 2-bedroom, 2-bath apartment, plus private parking via a rare curb cut.
Policies
Sorry, policy info isn’t available right now. Check back later.
Home features
Hardwood floors
Private outdoor space
Balcony, Garden
Building amenities
Services and facilities
Bike room
Laundry in building
Parking
Garage
Storage space
Locker/cage
Wellness and recreation
No info on wellness and recreation
Shared outdoor space
No info on shared outdoor space
About the building
333 Rutland Road
333 Rutland Road, Brooklyn, NY 11225
3 units
3 stories
2007 built
For sale
1 available units for saleFor rent
0 available units for rentDocuments and permits
View documents and permitsProperty history
- Price Change: No changes
- Days on market: Listed todayThis is the number of days the listing has been on StreetEasy.
| Date | Price | Event |
|---|---|---|
2/4/2026 | $1,795,000 | Listed by Compass |
9/15/2025 | $1,795,000 | |
4/1/2025 | $1,795,000 | |
12/31/2024 | $1,795,000 | |
10/23/2024 | $1,795,000 | Price increased by 6% |
Sign in to take a closer look at how this home compares to similar homes.
Explore Prospect Lefferts Gardens
Transit
| Location | Distance |
|---|---|
25at Winthrop St | 0.17 miles |
25at Sterling St | 0.25 miles |
25at President St | 0.59 miles |
25at Church Av | 0.6 miles |
BQSat Prospect Park | 0.66 miles |




































































































