1,000 ft²
$363 per ft²
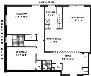
5 rooms
2 beds
1.5 baths
Co-op
- Jackson Heights
Resale
reported sale
Sold on 1/8/2026
Not yet verified by closing records
Seller's agent
This home has been saved by 31 users.
Listing by Winzone Realty Inc, Corporate Broker, 81-15 Queens Boulevard Ste, Elmhurst, NY 11373
Maintenance fees
$1,011/mo
Estimated payment
$2,895/mo
Legal disclaimerAll calculations are estimates provided by StreetEasy for informational purposes only. Actual amounts or financing terms may vary. Please contact your mortgage provider for specifics.Taxes
Included in maintenance fees
Tax abatement
No info
About
Seller’s agent
description
Bright and sunny 1st floor co-op in a wonderfully well-maintained building is located in the heart of Jackson Heights. This remarkable corner unit boasts a generously sized living room, perfect for entertaining or relaxing. This co-op is filled with natural light, creating a bright and welcoming atmosphere. Interior Features: The unit offers a spacious living room with a dining room , kitchen, and two well-sized bedrooms.
Policies
Sorry, policy info isn’t available right now. Check back later.
Home features
Private outdoor space
Garden
View
Park
Building amenities
Services and facilities
Bike room
Elevator
Laundry in building
Live-in super
Parking
Garage
Wellness and recreation
No info on wellness and recreation
Shared outdoor space
No info on shared outdoor space
About the building
33-02 92nd Street
33-02 92nd Street, Jackson Heights, NY 11372
- units
- stories
- built
For sale
0 available units for saleFor rent
0 available units for rentDocuments and permits
View documents and permitsProperty history
- Price Change: ↓ $2,000 (-0.5%) on 7/21/25
- Days on market: 284 daysThis is the number of days the listing has been on StreetEasy.
| Date | Price | Event |
|---|---|---|
1/8/2026 | $363,000 | Sold by Winzone Realty Inc |
12/12/2025 | $363,000 | In contract |
7/21/2025 | $363,000 | Price decreased by 1% |
3/3/2025 | $365,000 | Listed by Winzone Realty Inc |
2/28/2025 | $365,000 |
Past listing photos
Sign in to take a closer look at how this home compares to similar homes.
Explore Jackson Heights
Transit
| Location | Distance |
|---|---|
7at 90th St Elmhurst | 0.48 miles |
7at Junction Blvd | 0.56 miles |
7at 82nd St–Jackson Heights | 0.67 miles |
7at 103rd St | 0.82 miles |
MRat Elmhurst Av | 0.94 miles |
About Jackson Heights
Rental prices shown are base rent before any fees. Visit listings for cost and fees breakdown.
SalesMedian asking price
2 beds
$499K
RentalsMedian asking base rent
2 beds
$3,000
As prices continue to rise in Brooklyn, many New Yorkers are looking at the Queens neighborhood of Jackson Heights for its relatively affordable prices and manageable commutes to Manhattan. The subway line once described as the "cornfield route" can now get residents to Midtown in 20-30 minutes, while other lines ferry riders to the East Side of Manhattan in less than 15 minutes. The neighborhood boasts an eclectic mix of architectural styles, cuisines, traditions and peoples, and will appeal to anyone with a cosmopolitan frame of mind.
Learn more about Jackson Heights























































































































































































