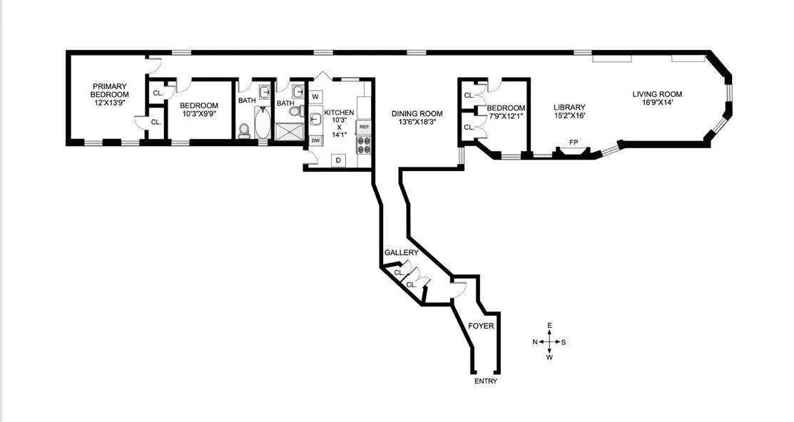
- ft²
7 rooms
3 beds
2 baths
Co-op
- Gramercy Park
Resale
recorded sale
Sold on 11/26/2024
Verified by closing records
Last listed for $1,999,999
Seller's agents
This home has been saved by 91 users.
Listing by Douglas Elliman, Limited Liability Broker, 186 Montague Street, Brooklyn, NY 11201 | Brokerage Listing ID: 22937860
Maintenance fees
$4,022/mo
Estimated payment
$10,425/mo
Legal disclaimerAll calculations are estimates provided by StreetEasy for informational purposes only. Actual amounts or financing terms may vary. Please contact your mortgage provider for specifics.Taxes
Included in maintenance fees
Tax abatement
No info
About
Seller’s agent
description
Contract signed !
KEY to Park ! Nothing else like it !!! RAREST opportunity to own a nearly 1700 Sq foot 3 bed / 2 full bath home On Gramercy Park !
This 1883 Historic building is one of the first elevator buildings to be in Gramercy Park area , and it’s NYC ' s oldest continuously run Coop ! ALL SHOWINGS ARE EXCLUSIVELY BY APPOINTMENT.
Policies
Pets allowed
Cats and dogs allowed
Pied-a-terre allowed
Home features
Dishwasher
Fireplace
Decorative
Hardwood floors
View
City, Skyline
Washer/dryer
Building amenities
Services and facilities
Doorman
Full-time
Elevator
Laundry in building
Live-in super
Package room
Storage space
Locker/cage
Wellness and recreation
No info on wellness and recreation
Shared outdoor space
No info on shared outdoor space
About the building
34 Gramercy Park East
34 Gramercy Park East, New York, NY 10003
45 units
9 stories
1883 built
For sale
2 available units for saleFor rent
0 available units for rentDocuments and permits
View documents and permitsProperty history
- Price Change: ↓ $400,001 (-16.7%) on 6/10/24
- Days on market: 105 daysThis is the number of days the listing has been on StreetEasy.
| Date | Price | Event |
|---|---|---|
11/26/2024 | $1,930,000 | Sold by Douglas Elliman |
7/16/2024 | $1,999,999 | In contract |
6/10/2024 | $1,999,999 | Price decreased by 17% |
4/2/2024 | $2,400,000 | Listed by Douglas Elliman |
Past listing photos
Sign in to take a closer look at how this home compares to similar homes.
Explore Gramercy Park
Transit
| Location | Distance |
|---|---|
6at 23rd St | 0.17 miles |
LNQRW456at 14th St–Union Square | 0.29 miles |
Lat 3rd Av | 0.3 miles |
RWat 23rd St | 0.32 miles |
6at 28th St | 0.41 miles |
About Gramercy Park
Rental prices shown are base rent before any fees. Visit listings for cost and fees breakdown.
SalesMedian asking price
3 beds
$3.8M
RentalsMedian asking base rent
3 beds
$9,995
In the early 20th century, Gramercy Park was synonymous with luxury. Some of the most prominent New Yorkers lived in grand houses along the neighborhood's eponymous park. Today, Gramercy Park is a brief respite from the hustle and bustle of Downtown Manhattan that still retains an old-world vibe. It's not uncommon to see residents dressed in tweed and loafers tottering down Irving Place, a quiet commercial stretch that offers a mix of local shops, restaurants, and pubs. As you head further east, the avenues get busier and more generic.
Gramercy's side streets are lined with walk-ups and large apartment buildings and are more casual than the blocks surrounding the actual park, attracting residents looking for a quintessentially nice New York City neighborhood.

























































































































































