- ft²
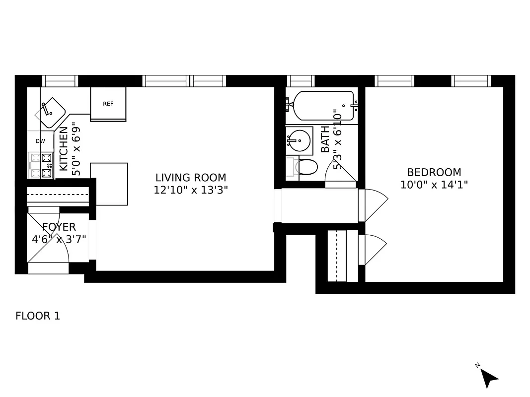
3 rooms
1 bed
1 bath
Co-op
- Lenox Hill
Resale
recorded sale
Sold on 2/16/2022
Verified by closing records
Last listed for $579,000
Seller's agents
This home has been saved by 19 users.
Listing by Douglas Elliman, Limited Liability Broker, 575 Madison Avenue, New York, NY 10022 | Brokerage Listing ID: 21437292
Maintenance fees
$1,137/mo
Estimated payment
$4,038/mo
Legal disclaimerAll calculations are estimates provided by StreetEasy for informational purposes only. Actual amounts or financing terms may vary. Please contact your mortgage provider for specifics.Taxes
Included in maintenance fees
Tax abatement
No info
About
Sellerâs agent
Buyerâs agent
description
Fully renovated prewar one bedroom with high ceilings. The renovated eat-in kitchen features stainless steel appliances as well as ample prep space for cooking and hosting. The apartment also features a renovated bathroom and recently renovated hardwood floors throughout.
Conveniently located on 77th between First and Second Avenue between Central Park, Carl Schulz and John Jay parks the outdoor options are endless and so are the dinning and shopping options.
Policies
Co-purchase allowed
Guarantors accepted
Parents buying allowed
Pets allowed
Cats and dogs allowed
Pied-a-terre allowed
Sublets allowed
Home features
Dishwasher
Hardwood floors
Building amenities
Services and facilities
Bike room
Elevator
Laundry in building
Live-in super
Storage space
Wellness and recreation
No info on wellness and recreation
Shared outdoor space
No info on shared outdoor space
About the building
345 East 77th Street
345 East 77th Street, New York, NY 10075
60 units
6 stories
1920 built
For sale
1 available units for saleFor rent
0 available units for rentDocuments and permits
View documents and permitsProperty history
- Price Change: No changes
- Days on market: 31 daysThis is the number of days the listing has been on StreetEasy.
| Date | Price | Event |
|---|---|---|
2/16/2022 | $565,000 | Sold by Douglas Elliman |
12/10/2021 | $579,000 | In contract |
11/9/2021 | $579,000 | Listed by Douglas Elliman |
8/11/2016 | $595,676 | |
6/16/2016 | $599,000 |
Past listing photos
Sign in to take a closer look at how this home compares to similar homes.
Explore Lenox Hill
Transit
| Location | Distance |
|---|---|
Qat 72nd St | 0.29 miles |
6at 77th St | 0.32 miles |
Qat 86th St | 0.33 miles |
456at 86th St | 0.54 miles |
6at 68th StâHunter College | 0.57 miles |






































































































