$2,500
For Rent
Base rent only. For total monthly price and additional fees, see .
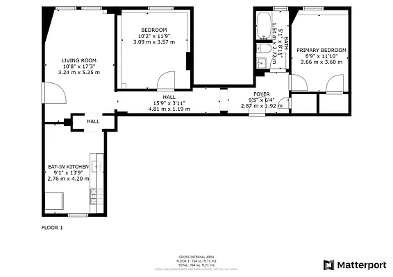
- ft²
5 rooms
2 beds
1 bath
Co-op
- Jackson Heights
Under NYC law, you can't be charged a broker fee if you didn't hire a broker.
Listed By
Listing by Garden Heights Realty, Tradename Broker, 78-27 37th Avenue Ll, Jackson Heights, NY 11372
Searching with a housing voucher, like Section 8?
Available
Available now
Days on market
Listed today
Last price change
No changes
About
Welcome to The Greystones. Formally the Superintendent’s quarters, this bright newly renovated two-bedroom, one bath BASEMENT apartment offers garden and patio access and free onsite laundry.
***CO-OP BOARD APPROVAL REQUIRED***
Enter the spacious living room, adjacent to the Eat-in Kitchen, you are greeted by West-facing large windows offering abundant natural light all day long.
Policies
Pets allowed
Cats only (no dogs)
Home features
Dishwasher
Hardwood floors
Private outdoor space
Garden
View
Garden
Building amenities
Services and facilities
Laundry in building
Live-in super
Wellness and recreation
No info on wellness and recreation
Shared outdoor space
No info on shared outdoor space
About the building
35-47 80th Street
35-47 80th Street, Jackson Heights, NY 11372
Complex:
The Greystones11 units
5 stories
1917 built
Property history
Prices shown are base rent only. For total monthly price and additional fees, see .
| Date | Base rent | Event |
|---|---|---|
12/30/2025 | $2,500 | Listed by Garden Heights Realty |
4/12/2022 | $2,050 | |
3/20/2022 | $2,050 |
Past listing photos
Sign in to take a closer look at how this home compares to similar homes.
Explore Jackson Heights
Transit
| Location | Distance |
|---|---|
7at 82nd St–Jackson Heights | 0.2 miles |
EFMR7at Jackson Heights–Roosevelt Ave | 0.35 miles |
EFMR7at Broadway–74th St | 0.36 miles |
7at 90th St Elmhurst | 0.51 miles |
MRat Elmhurst Av | 0.53 miles |
About Jackson Heights
Rental prices shown are base rent before any fees. Visit listings for cost and fees breakdown.
SalesMedian asking price
2 beds
$525K
RentalsMedian asking base rent
2 beds
$2,850
As prices continue to rise in Brooklyn, many New Yorkers are looking at the Queens neighborhood of Jackson Heights for its relatively affordable prices and manageable commutes to Manhattan. The subway line once described as the "cornfield route" can now get residents to Midtown in 20-30 minutes, while other lines ferry riders to the East Side of Manhattan in less than 15 minutes. The neighborhood boasts an eclectic mix of architectural styles, cuisines, traditions and peoples, and will appeal to anyone with a cosmopolitan frame of mind.
Learn more about Jackson HeightsSimilar homes
Prices shown are base rent only and don't include any fees. Visit each listing to see a complete cost breakdown.
Similar Homes looks at ad spend and other factors like location, price, and number of beds and baths.










































































































