$19,500
for rent
Base rent only. For total monthly price and additional fees, see .
2,000 ft²
$117 per ft²
6 rooms
3 beds
2 baths
Rental unit
- Tribeca
Under NYC law, you can't be charged a broker fee if you didn't hire a broker.
Listed by
This home has been saved by 126 users.
Listing by Brown Harris Stevens, Real Estate Principal Office, 43 North Moore Street, New York, NY 10013
Available
6/1/2026
Days on market
25 days
Last price change
No changes
About
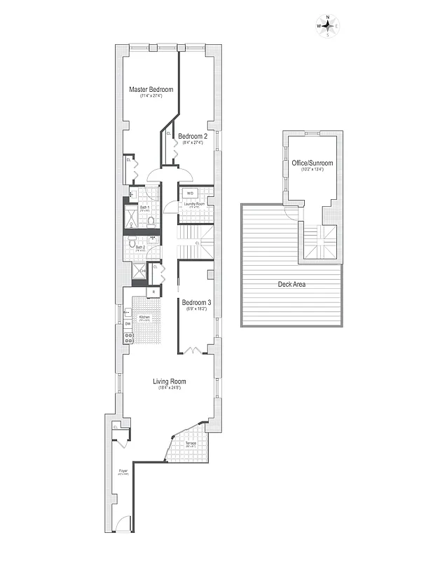
ALL HANDS ON DECK
This light filled duplex loft offers a private roof deck with stunning views of the downtown skyline.
At approx 2000 square feet, the apartment features exposed brick walls, beamed ceilings and multiple exposures throughout. The living room has a bonus terrace that is perfect for a breakfast table in the spring and summer. There are three spacious bedrooms and a sun room off the deck that can be used as a guest bed, home office or den.
Policies
Sorry, policy info isn’t available right now. Check back later.
Home features
Central air
Dishwasher
Hardwood floors
Private outdoor space
Roof deck
View
City, Skyline
Washer/dryer
Building amenities
Services and facilities
Doorman
Elevator
Storage space
Locker/cage
Wellness and recreation
No info on wellness and recreation
Shared outdoor space
Roof deck
About the building
36 Laight Street
36 Laight Street, New York, NY 10013
14 units
7 stories
1900 built
For rent
1 available units for rentProperty history
Prices shown are base rent only. For total monthly price and additional fees, see .
| Date | Base rent | Event |
|---|---|---|
4/17/2026 | $19,500 | Listed by Brown Harris Stevens |
12/12/2024 | $14,950 | |
7/18/2024 | $14,950 | |
2/3/2023 | $14,495 | |
11/4/2022 | $14,495 |
Past listing photos
Sign in to take a closer look at how this home compares to similar homes.
Explore Tribeca
Transit
| Location | Distance |
|---|---|
1at Canal St | under 500 feet |
ACEat Canal St | 0.1 miles |
1at Franklin St | 0.21 miles |
CEat Spring St | 0.28 miles |
JNQRWZ6at Canal St | 0.33 miles |
About Tribeca
Rental prices shown are base rent before any fees. Visit listings for cost and fees breakdown.
SalesMedian asking price
3 beds
$5.2M
RentalsMedian asking base rent
3 beds
$18,000
Tribeca is an upscale neighborhood known for high-end real estate and well-heeled residents — a downtown haven for European cars and pedigreed dogs. It's also a truly gorgeous area that mixes glorious old cast-iron lofts, wide cobblestone streets, and dramatic new buildings. Decades ago, these lofts housed artists and squatters. But the bohemians have given way to cool-seekers with bigger bank accounts. Now, this neighborhood is among the most expensive places to live in the city. That hasn't cost the neighborhood much of its sophistication, though. Nightlife in Tribeca remains busy but refined, attracting a cosmopolitan crowd with an appreciation for the finer things in life.
Learn more about TribecaSimilar homes
Prices shown are base rent only and don't include any fees. Visit each listing to see a complete cost breakdown.
Similar Homes looks at ad spend and other factors like location, price, and number of beds and baths.















































































































