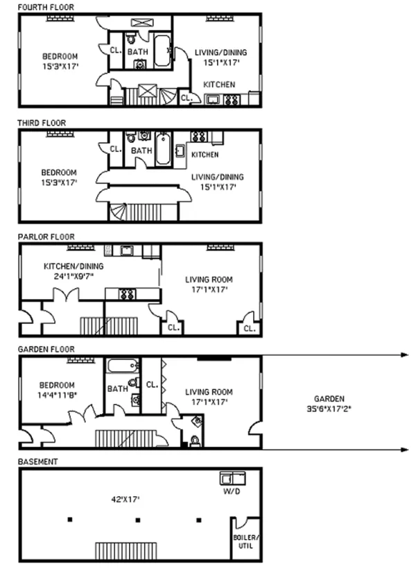
3,400 ft²
$277 per ft²
6 rooms
4 beds
3 baths
Three-family home
- Bedford-Stuyvesant
reported sale
Sold on 8/18/2012
Not yet verified by closing records
Seller's agents
This home has been saved by 26 users.
Listing by Brown Harris Stevens, Real Estate Principal Office, 43 North Moore Street, New York, NY 10013 | MLS #: 1743349
Common charges
Not applicable
Estimated payment
$4,841/mo
Legal disclaimerAll calculations are estimates provided by StreetEasy for informational purposes only. Actual amounts or financing terms may vary. Please contact your mortgage provider for specifics.Taxes
No info
Tax abatement
No info
About
Seller’s agent
description
CONTRACT SIGNED
BROWNSTONE PERFECT
On the border of Clinton Hill and Bedford Stuyvesant, this sunny two-unit, four-story Italianate brownstone checks all the boxes. Loaded with original details, a well-renovated owner's duplex and additional high rental income from the floors above, this is the perfect starter home with income (or an easy conversion to triplex + high-income garden rental) to kick off...
Policies
Sorry, policy info isn’t available right now. Check back later.
Home features
Private outdoor space
Garden
Building amenities
No info on building amenities
About the building
37 Brevoort Place
37 Brevoort Place, Brooklyn, NY 11216
3 units
3 stories
1910 built
For sale
0 available units for saleFor rent
0 available units for rentDocuments and permits
View documents and permitsProperty history
- Price Change: No changes
- Days on market: 66 daysThis is the number of days the listing has been on StreetEasy.
| Date | Price | Event |
|---|---|---|
8/15/2012 | $945,000 | |
8/18/2012 | $945,000 | Sold by Brown Harris Stevens |
6/11/2012 | $945,000 | In contract |
4/6/2012 | $945,000 | Listed by Brown Harris Stevens |
Sign in to take a closer look at how this home compares to similar homes.
Explore Bedford-Stuyvesant
Transit
| Location | Distance |
|---|---|
ACSat Franklin Av | 0.1 miles |
ASat Franklin Av | 0.11 miles |
ACat Nostrand Av | 0.23 miles |
LIRRat Nostrand Avenue | 0.33 miles |
Sat Park Place | 0.4 miles |
About Bedford-Stuyvesant
Rental prices shown are base rent before any fees. Visit listings for cost and fees breakdown.
SalesMedian asking price
4 beds
$2.04M
RentalsMedian asking base rent
4 beds
$8,500
Bedford-Stuyvesant is a vast Brooklyn neighborhood filled with historic brownstones. Fans of Victorian architecture will appreciate the striking abodes in the leafy historic district.
Learn more about Bedford-Stuyvesant
















































































































