$859,000
For Sale
1,980 ft²
$433 per ft²
12 rooms
3 beds
3 baths
House
- City Line
Resale
This home has been saved by 32 users.
Listing by Revived Residential, Real Estate Principal Office, 2124 Flatbush Avenue, Brooklyn, NY 11234
Common charges
Not applicable
Estimated payment
$4,907/mo
Legal disclaimerAll calculations are estimates provided by StreetEasy for informational purposes only. Actual amounts or financing terms may vary. Please contact your mortgage provider for specifics.Taxes
$488/mo
Tax abatement
No info
About
Seller’s agent
description
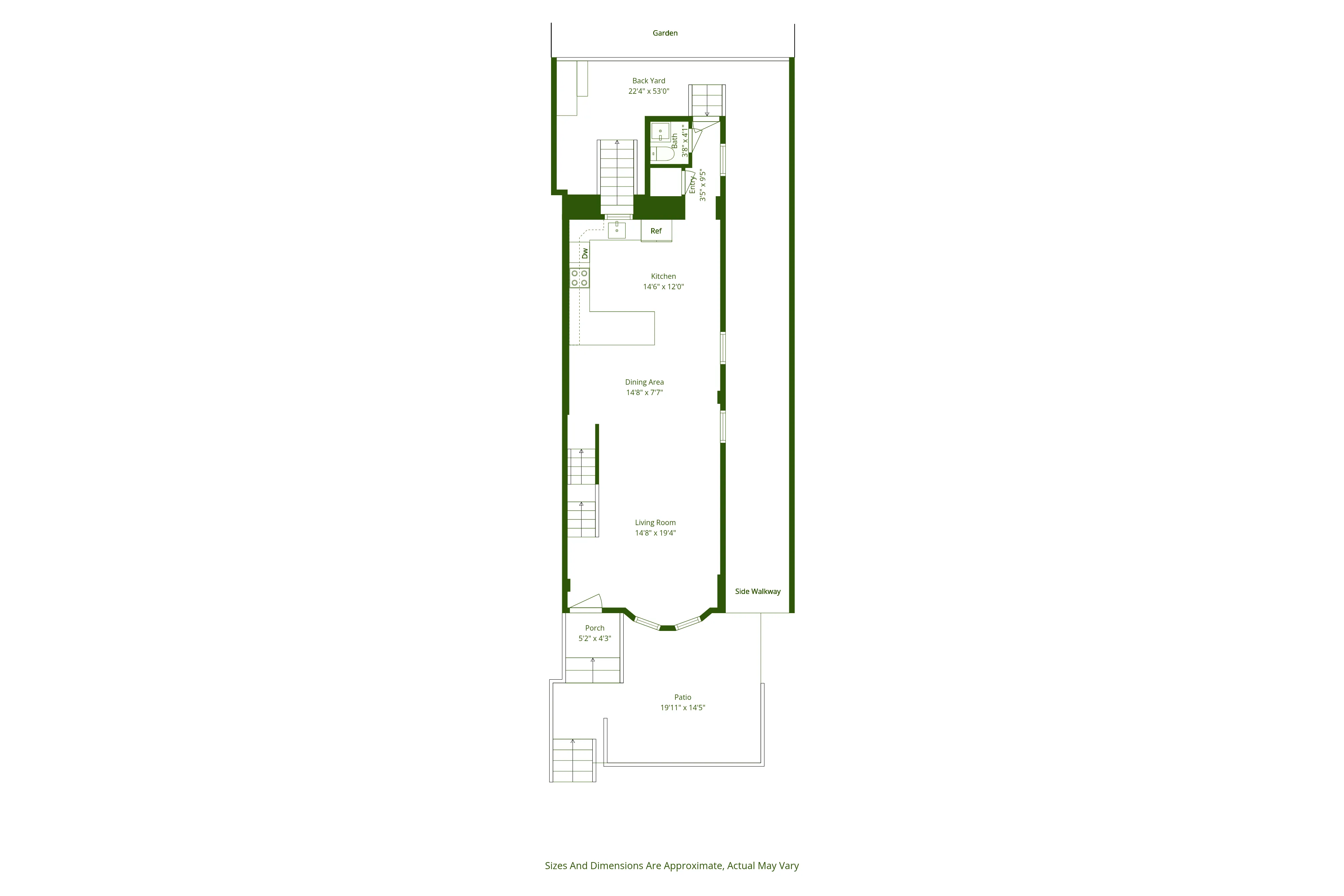
371 Grant Avenue is a fully renovated brick single-family townhouse on a quiet, tree-lined street at the Cypress Hills/City Line border—perfect for families needing space.
The first floor features a bright open-concept living/dining area, a chef’s granite kitchen with custom cabinetry, stainless steel appliances, an island with seating, access to a private backyard, and a guest half-bath.
Policies
Sorry, policy info isn’t available right now. Check back later.
Home features
Central air
Dishwasher
Hardwood floors
Private outdoor space
Garden
View
City, Garden
Washer/dryer
Building amenities
Services and facilities
Laundry in building
Wellness and recreation
No info on wellness and recreation
Shared outdoor space
Courtyard
About the building
371 Grant Avenue
371 Grant Avenue, Brooklyn, NY 11208
1 unit
2 stories
1910 built
For sale
1 available units for saleFor rent
0 available units for rentDocuments and permits
View documents and permitsProperty history
- Price Change: ↓ $20,000 (-2.3%) on 10/30/25
- Days on market: 106 daysThis is the number of days the listing has been on StreetEasy.
| Date | Price | Event |
|---|---|---|
10/30/2025 | $859,000 | Price decreased by 2% |
9/30/2025 | $879,000 | Listed by Revived Residential |
Sign in to take a closer look at how this home compares to similar homes.
Explore City Line
Transit
| Location | Distance |
|---|---|
JZat Crescent St | 0.33 miles |
Aat Grant Av | 0.36 miles |
Aat 80th St–Hudson St | 0.37 miles |
ACat Euclid Av | 0.51 miles |
Jat Cypress Hills | 0.63 miles |






























































































































































































































