$5,600
For Rent
Base rent only. For total monthly price and additional fees, see .
Delisted 9/25/2025
2,000 ft²
$33 per ft²
6 rooms
3 beds
3.5 baths
Two-family home
- Stuyvesant Heights
Under NYC law, you can't be charged a broker fee if you didn't hire a broker.
Listed By
This home has been saved by 37 users.
Listing by Compass, Corporate Broker, 110 5th Avenue, New York, NY 10011
Unavailable
Delisted on 9/25/2025
Days on market
29 days
Last price change
↓ $175 (-3.0%) on 9/12/25
About
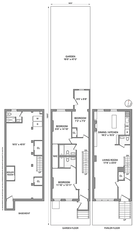
This beautifully renovated townhouse duplex has it's own private garden plus use of the finished basement. The grand parlor floor has high ceilings and is a full-floor of living space with an open loft-like feel. The chef's kitchen is open with an island and it's fully equipped with tons of storage, a Bosch dishwasher and a full size refrigerator with a water filtration system.
Policies
Sorry, policy info isn’t available right now. Check back later.
Home features
Dishwasher
Hardwood floors
Private outdoor space
Garden
Washer/dryer
Building amenities
Services and facilities
Laundry in building
Wellness and recreation
No info on wellness and recreation
Shared outdoor space
No info on shared outdoor space
About the building
383 Bainbridge Street
383 Bainbridge Street, Brooklyn, NY 11233
2 units
2 stories
1899 built
Property history
Prices shown are base rent only. For total monthly price and additional fees, see .
| Date | Base rent | Event |
|---|---|---|
9/26/2025 | $5,600 | Delisted by Compass |
9/25/2025 | $5,600 | No longer available |
9/12/2025 | $5,600 | Price decreased by 3% |
8/26/2025 | $5,775 | Listed by Compass |
6/23/2020 | $4,000 |
Sign in to take a closer look at how this home compares to similar homes.
Explore Stuyvesant Heights
Transit
| Location | Distance |
|---|---|
ACat Ralph Av | 0.22 miles |
Jat Halsey St | 0.38 miles |
ACat Rockaway Av | 0.48 miles |
ACat Utica Av | 0.48 miles |
JZat Chauncey St | 0.53 miles |
Similar homes
Prices shown are base rent only and don't include any fees. Visit each listing to see a complete cost breakdown.
Similar Homes looks at ad spend and other factors like location, price, and number of beds and baths.
























































































































































