View this home virtually
$5,200,000
For Sale
Temporarily off market 12/20/2025
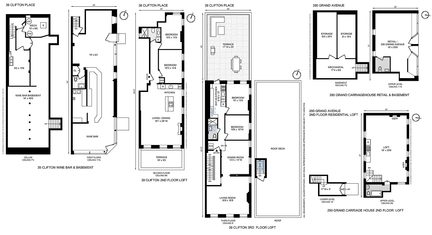
5,800 ft²
$896 per ft²
10 rooms
5 beds
3+ baths
Mixed-use building
- Clinton Hill
Resale
Seller's agent
This home has been saved by 50 users.
Listing by Compass, Corporate Broker, 212 Court Street, Brooklyn, NY 11201
Common charges
Not applicable
Estimated payment
$28,218/mo
Legal disclaimerAll calculations are estimates provided by StreetEasy for informational purposes only. Actual amounts or financing terms may vary. Please contact your mortgage provider for specifics.Taxes
$2,167/mo
Tax abatement
No info
About
Seller’s agent
description
Price adjustment to $5.2MM!
Located on a historic corner at Clifton Place and Grand Avenue in Brooklyn's sought-after Clinton Hill neighborhood, this unique 19th-century building offers exceptional opportunities, Whether you're considering living in one loft and renting the remaining units or considering other options such as a 1031 tax exchange, a condo project, or a high-income investment.
Policies
Sorry, policy info isn’t available right now. Check back later.
Home features
Dishwasher
Fireplace
Decorative
Hardwood floors
Private outdoor space
Roof deck, Terrace
View
City, Garden
Washer/dryer
Building amenities
Services and facilities
No info on services and facilities
Wellness and recreation
No info on wellness and recreation
Shared outdoor space
Roof deck
About the building
39 Clifton Place
39 Clifton Place, Brooklyn, NY 11238
5 units
3 stories
1876 built
For sale
1 available units for saleFor rent
0 available units for rentDocuments and permits
View documents and permitsProperty history
- Price Change: ↓ $795,000 (-13.3%) on 9/4/25
- Days on market: 284 daysThis is the number of days the listing has been on StreetEasy.
| Date | Price | Event |
|---|---|---|
12/20/2025 | $5,200,000 | Temporarily off market |
9/4/2025 | $5,200,000 | Price decreased by 13% |
3/13/2025 | $5,995,000 | Listed by Compass |
3/5/2025 | $5,995,000 | Delisted by Compass |
3/3/2025 | $5,995,000 | Listed by Compass |
Sign in to take a closer look at how this home compares to similar homes.
Explore Clinton Hill
Transit
| Location | Distance |
|---|---|
Gat Clinton–Washington Avs | 0.14 miles |
Gat Classon Av | 0.15 miles |
Cat Clinton & Washington Avs | 0.35 miles |
Gat Bedford–Nostrand Avs | 0.41 miles |
Cat Lafayette Av | 0.54 miles |



































































































































































































































































