1,500 ft²
$468 per ft²
6 rooms
3 beds
2 baths
Co-op
- Riverdale
Resale
recorded sale
Sold on 7/30/2024
Verified by closing records
Last listed for $729,000
Seller's agents
This home has been saved by 34 users.
Listing by Brown Harris Stevens, Real Estate Principal Office, 3531 Johnson Avenue, Riverdale, NY 10463
Maintenance fees
$2,128/mo
Estimated payment
$6,156/mo
Taxes
Included in maintenance fees
Tax abatement
No info
About
Seller’s agent
description
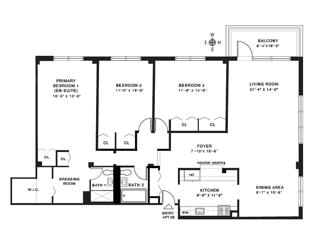
Rarely available MOVE-IN READY 3-bedroom, 2 full bath apartment, nestled on the corner with serene wooded views. Apartment details include a private balcony, West and North exposures, large renovated kitchen open to counter seating, renovated bathrooms, a primary en-suite with dressing area and walk-in closet, a spacious dining-L, abundant closets and parquet wood floors throughout.
Policies
Sorry, policy info isn’t available right now. Check back later.
Home features
Dishwasher
Hardwood floors
Private outdoor space
Balcony
Building amenities
Services and facilities
Bike room
Laundry in building
Live-in super
Package room
Parking
Garage
Storage space
Locker/cage
Wellness and recreation
Gym
Shared outdoor space
Courtyard
About the building
3935 Blackstone Avenue
3935 Blackstone Avenue, Bronx, NY 10471
123 units
12 stories
1960 built
For sale
6 available units for saleFor rent
0 available units for rentDocuments and permits
View documents and permitsProperty history
- Price Change: No changes
- Days on market: 177 days
| Date | Price | Event |
|---|---|---|
7/30/2024 | $702,500 | Sold by Brown Harris Stevens |
4/17/2024 | $729,000 | In contract |
10/23/2023 | $729,000 | Listed by Brown Harris Stevens |
5/22/2012 | $575,000 | |
3/21/2012 | $625,000 |
Past listing photos
Sign in to take a closer look at how this home compares to similar homes.
Explore Riverdale
Transit
| Location | Distance |
|---|---|
1at 238th St | 0.7 miles |
1at Van Cortlandt Park–242nd St | 0.71 miles |
1at 231st St | 0.86 miles |
1at Marble Hill–225th St | 1.12 miles |
4at Bedford Park Blvd–Lehman College | 1.65 miles |
About Riverdale
Rental prices shown are base rent before any fees. Visit listings for cost and fees breakdown.
SalesMedian asking price
3 beds
$615K
RentalsMedian asking base rent
3 beds
$4,300
Riverdale was once a summer retreat for wealthy New Yorkers, who built large estates and Tudor-style mansions along the cliffs overlooking the Hudson River and the Palisades. Many of these properties still remain, which lends an upscale, polished atmosphere to the neighborhood's windy, tree-lined streets. Although certain pockets recall the tonier Westchester towns to the north, Riverdale is far more diverse. In addition to large single-family homes, Riverdale also features many co-op complexes, which offer more affordable housing options but the same easy, bucolic pace of life.
Learn more about Riverdale




































































































































































