- ft²
10 rooms
5 beds
2.5 baths
Two-family home
- Bedford-Stuyvesant
recorded sale
Sold on 1/5/2015
Verified by closing records
Last listed for $949,000
Seller's agents
Corcoran
This home has been saved by 48 users.
Listing by Corcoran, Limited Liability Broker | Brokerage Listing ID: 3325748
Common charges
Not applicable
Estimated payment
$5,141/mo
Legal disclaimerAll calculations are estimates provided by StreetEasy for informational purposes only. Actual amounts or financing terms may vary. Please contact your mortgage provider for specifics.Taxes
$255/mo
Tax abatement
No info
About
Seller’s agent
Buyer’s agent
description
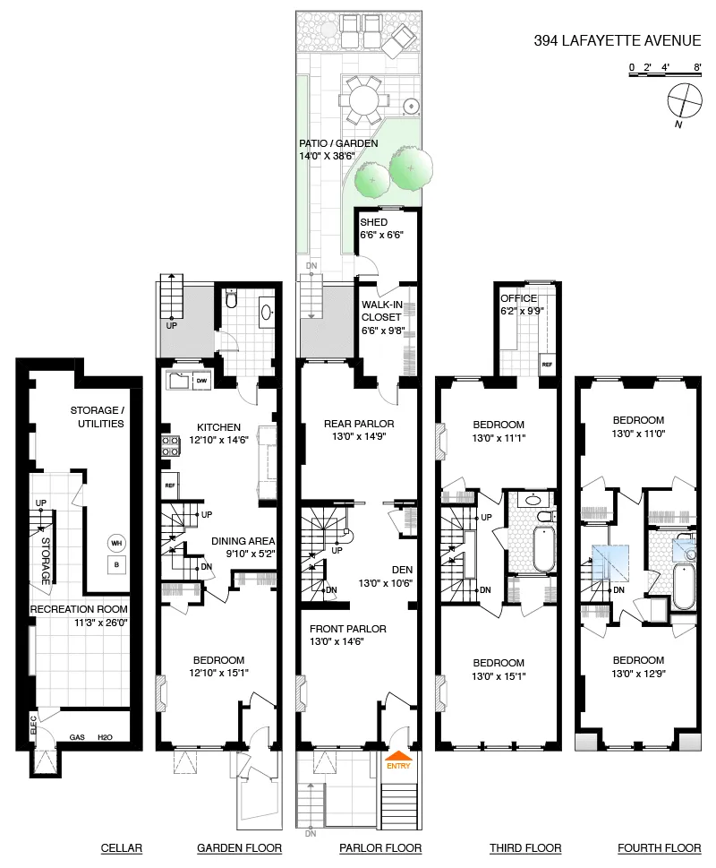
Welcome to this fabulous and centrally located single family town house in Clinton Hill! Enter onto the parlor level to a sprawling living area including original fretwork, hardwood floors, original wainscoting, and a decorative fireplace. The garden level below is currently used for the kitchen and dining areas. The renovated kitchen includes a half bath and access to the beautiful and spacious garden complete with patio.
Policies
Sorry, policy info isn’t available right now. Check back later.
Home features
Private outdoor space
Patio
Building amenities
No info on building amenities
About the building
394 Lafayette Avenue
394 Lafayette Avenue, Brooklyn, NY 11238
2 units
3 stories
1899 built
For sale
0 available units for saleFor rent
0 available units for rentDocuments and permits
View documents and permitsProperty history
- Price Change: No changes
- Days on market: 73 daysThis is the number of days the listing has been on StreetEasy.
| Date | Price | Event |
|---|---|---|
3/16/2023 | $2,425,000 | |
12/15/2022 | $2,425,000 | |
10/21/2022 | $2,425,000 | Price decreased by 1% |
9/23/2022 | $2,450,000 | |
7/1/2021 | $2,499,000 |
Past listing photos
Sign in to take a closer look at how this home compares to similar homes.
Explore Bedford-Stuyvesant
Transit
| Location | Distance |
|---|---|
Gat Classon Av | under 500 feet |
Gat Bedford–Nostrand Avs | 0.22 miles |
Gat Clinton–Washington Avs | 0.32 miles |
Cat Clinton & Washington Avs | 0.47 miles |
ACSat Franklin Av | 0.55 miles |
About Bedford-Stuyvesant
Rental prices shown are base rent before any fees. Visit listings for cost and fees breakdown.
SalesMedian asking price
5 beds
$2.75M
RentalsMedian asking base rent
5 beds
$4,997
Bedford-Stuyvesant is a vast Brooklyn neighborhood filled with historic brownstones. Fans of Victorian architecture will appreciate the striking abodes in the leafy historic district.
Learn more about Bedford-Stuyvesant
















































































































