$7,000
For Rent
Base rent only. For total monthly price and additional fees, see .
Rented 8/5/2025
- ft²
4 rooms
2 beds
2 baths
Three-family home
- Prospect Heights
Under NYC law, you can't be charged a broker fee if you didn't hire a broker.
Listed By
Owner
This home has been saved by 21 users.
Listing by Owner
Unavailable
Rented on 8/5/2025
Days on market
5 days
Last price change
No changes
About
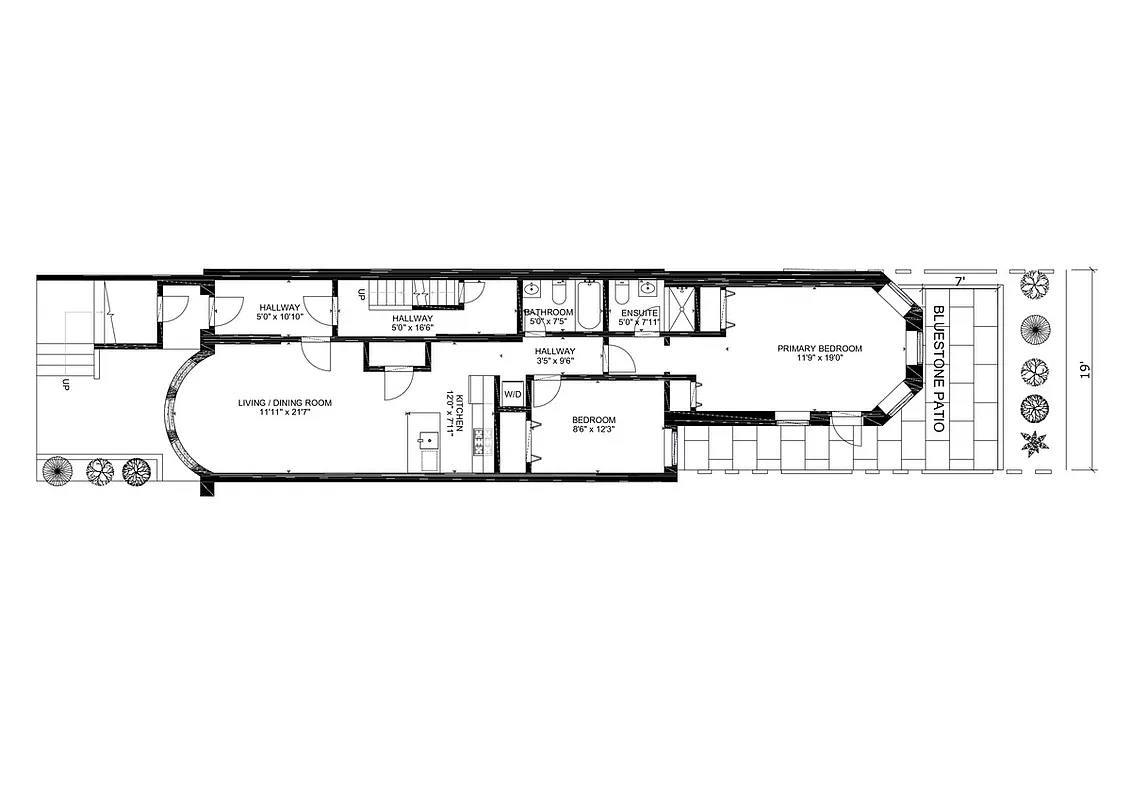
A spacious two bedroom two bath apartment with private outdoor space, located mid-block on a charming Prospect Heights street. Start your mornings in peace in the sunny and quiet south facing bluestone patio. This pristine and exceptional apartment occupies the garden level of a newly renovated townhouse. The quality and thoughtfulness of the renovation goes well beyond what you typically find in a rental and offers condo level finishes.
Policies
Sorry, policy info isn’t available right now. Check back later.
Home features
Central air
Dishwasher
Hardwood floors
Private outdoor space
Garden
View
Garden
Washer/dryer
Building amenities
No info on building amenities
About the building
396 Sterling Place
396 Sterling Place, Brooklyn, NY 11238
3 units
3 stories
1910 built
Property history
Prices shown are base rent only. For total monthly price and additional fees, see .
| Date | Base rent | Event |
|---|---|---|
8/5/2025 | $500 | Rented by Owner |
7/31/2025 | $500 | Listed by Owner |
7/16/2024 | $500 | |
7/1/2024 | $500 | |
7/1/2024 | $500 |
Past listing photos
Sign in to take a closer look at how this home compares to similar homes.
Explore Prospect Heights
Transit
| Location | Distance |
|---|---|
23at Eastern Parkway–Brooklyn Museum | 0.19 miles |
23at Grand Army Plaza | 0.3 miles |
Sat Park Place | 0.38 miles |
BQat 7th Av | 0.41 miles |
S2345at Botanic Gardens | 0.43 miles |
About Prospect Heights
Rental prices shown are base rent before any fees. Visit listings for cost and fees breakdown.
SalesMedian asking price
2 beds
$1.55M
RentalsMedian asking base rent
2 beds
$5,437
Prospect Heights offers a vibrant mix of old and new Brooklyn. Often referred to as a fallback for people unable to afford Park Slope, the area has recently become known for its own unique personality - as well as its rising real estate value. The commercial strips of Vanderbilt and Washington Avenues offer a mix of bodegas and inveterate neighborhood standbys next to a new spate of hipster-centric bars and restaurants. Turn down any side street, however, and you can encounter gorgeous old brownstones surrounded by quiet greenery.
Learn more about Prospect HeightsSimilar homes
Prices shown are base rent only and don't include any fees. Visit each listing to see a complete cost breakdown.
Similar Homes looks at ad spend and other factors like location, price, and number of beds and baths.





























































































































































































































