2,000 ft²
$1,062 per ft²
4 rooms
2 beds
2 baths
Hybrid
- Tribeca
recorded sale
Sold on 12/29/2010
Verified by closing records
Last listed for $2,299,000
Seller's agent
Warburg
This home has been saved by 16 users.
Listing by Warburg, Corporate Broker | Brokerage Listing ID: 760323
Common charges
$1,838/mo
Estimated payment
$13,918/mo
Taxes
No info
Tax abatement
No info
About
Seller’s agent
Buyer’s agent
description
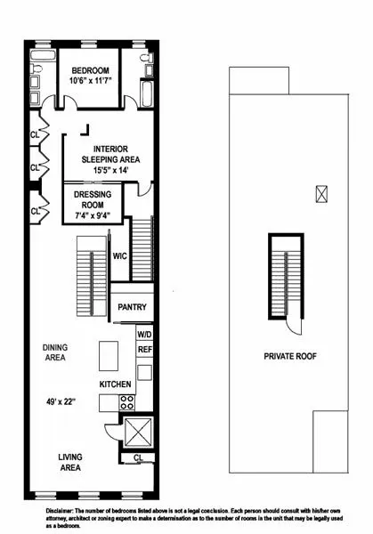
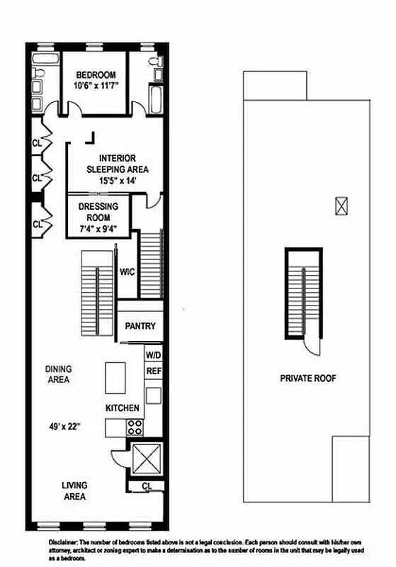
Soaring 14 ft. white washed exposed wood beam ceilings and original brick are accented with modern materials throughout this handsomely renovated penthouse loft (approx 2000 sq.ft.).Wide staircase leading up to the entire private 850+sq.ft roof space with FAR. Industrial stainless steel, granite and tiled kitchen complete with vented Wolf stove, Sub Zero fridge, Kitchen Aid dishwasher and a full size washer / vented dryer.
Policies
Pets allowed
Cats and dogs allowed
Home features
Washer/dryer
Building amenities
Services and facilities
Elevator
Wellness and recreation
No info on wellness and recreation
Shared outdoor space
No info on shared outdoor space
About the building
41 Murray Street
41 Murray Street, New York, NY 10007
8 units
5 stories
1856 built
For sale
0 available units for saleFor rent
0 available units for rentDocuments and permits
View documents and permitsProperty history
- Price Change: ↓ $1,000 (-0.0%) on 9/30/10
- Days on market: 332 days
| Date | Price | Event |
|---|---|---|
12/29/2010 | $2,125,000 | Sold by Warburg |
1/11/2011 | $2,299,000 | Listed by Warburg |
1/3/2011 | $2,299,000 | No longer available |
11/4/2010 | $2,299,000 | In contract |
9/30/2010 | $2,299,000 | Price decreased by 0% |
Past listing photos
Sign in to take a closer look at how this home compares to similar homes.
Explore Tribeca
Transit
| Location | Distance |
|---|---|
ACE23at Chambers St | under 500 feet |
Eat World Trade Center | under 500 feet |
123at Chambers St | under 500 feet |
AC23at Park Place | 0.12 miles |
RWat City Hall | 0.13 miles |
About Tribeca
Rental prices shown are base rent before any fees. Visit listings for cost and fees breakdown.
SalesMedian asking price
2 beds
$3.1M
RentalsMedian asking base rent
2 beds
$8,395
Tribeca is an upscale neighborhood known for high-end real estate and well-heeled residents — a downtown haven for European cars and pedigreed dogs. It's also a truly gorgeous area that mixes glorious old cast-iron lofts, wide cobblestone streets, and dramatic new buildings. Decades ago, these lofts housed artists and squatters. But the bohemians have given way to cool-seekers with bigger bank accounts. Now, this neighborhood is among the most expensive places to live in the city. That hasn't cost the neighborhood much of its sophistication, though. Nightlife in Tribeca remains busy but refined, attracting a cosmopolitan crowd with an appreciation for the finer things in life.
Learn more about Tribeca




























































































































































