$2,900
For Rent
Base rent only. For total monthly price and additional fees, see .
Rented 8/28/2024
- ft²
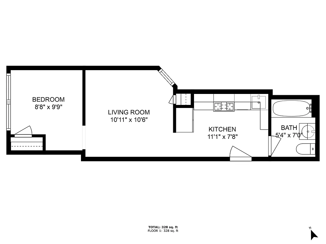
2 rooms
1 bed
1 bath
Rental unit
- Prospect Heights
Under NYC law, you can't be charged a broker fee if you didn't hire a broker.
Listed By
This home has been saved by 221 users.
Listing by Compass, Corporate Broker, 1320 Fulton Street, Brooklyn, NY 11216
Unavailable
Rented on 8/28/2024
Days on market
58 days
Last price change
↓ $100 (-3.3%) on 8/20/24
About
Back on the market! Welcome home to this nicely renovated junior 1 bed in the heart of Prospect Heights. As you step inside, you’re greeted by an open kitchen with a full suite of stainless steel appliances including a dishwasher, microwave, and gas stove. Enjoy a separate living room with a closet plus a west-facing bedroom that can accommodate a full/queen sized bed.
Policies
Sorry, policy info isn’t available right now. Check back later.
Home features
Dishwasher
Hardwood floors
Building amenities
Services and facilities
Laundry in building
Wellness and recreation
No info on wellness and recreation
Shared outdoor space
No info on shared outdoor space
About the building
41 Underhill Avenue
41 Underhill Avenue, Brooklyn, NY 11238
12 units
4 stories
1931 built
For rent
0 available units for rentProperty history
Prices shown are base rent only. For total monthly price and additional fees, see .
| Date | Base rent | Event |
|---|---|---|
8/30/2024 | $2,900 | Rented by Compass |
8/28/2024 | $2,900 | Temporarily off market |
8/20/2024 | $2,900 | Price decreased by 3% |
8/14/2024 | $3,000 | Listed by Compass |
8/11/2024 | $3,000 | Temporarily off market |
Past listing photos
Sign in to take a closer look at how this home compares to similar homes.
Explore Prospect Heights
Transit
| Location | Distance |
|---|---|
Cat Clinton & Washington Avs | 0.22 miles |
BQat 7th Av | 0.43 miles |
23at Grand Army Plaza | 0.44 miles |
ASat Franklin Av | 0.48 miles |
Sat Park Place | 0.49 miles |
About Prospect Heights
Rental prices shown are base rent before any fees. Visit listings for cost and fees breakdown.
SalesMedian asking price
1 bed
$774.5K
RentalsMedian asking base rent
1 bed
$4,500
Prospect Heights offers a vibrant mix of old and new Brooklyn. Often referred to as a fallback for people unable to afford Park Slope, the area has recently become known for its own unique personality - as well as its rising real estate value. The commercial strips of Vanderbilt and Washington Avenues offer a mix of bodegas and inveterate neighborhood standbys next to a new spate of hipster-centric bars and restaurants. Turn down any side street, however, and you can encounter gorgeous old brownstones surrounded by quiet greenery.
Learn more about Prospect HeightsSimilar homes
Prices shown are base rent only and don't include any fees. Visit each listing to see a complete cost breakdown.
Similar Homes looks at ad spend and other factors like location, price, and number of beds and baths.




































































