- ft²
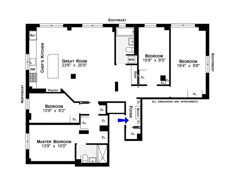
7 rooms
4 beds
2 baths
Co-op
- Lower East Side
reported sale
Sold on 5/3/2019
Not yet verified by closing records
Seller's agents
This home has been saved by 118 users.
Listing by Halstead Real Estate, 100 Fifth Avenue, New York, NY 10011 | MLS #: 19197486
Maintenance fees
$1,361/mo
Estimated payment
$12,384/mo
Taxes
Included in maintenance fees
Tax abatement
No info
About
Seller’s agent
description
MINT ARCHITECT RENOVATED 4BR/2BA!
Yes you can have a fully redesigned 4BR/2BA combination home on Manhattan's Lower East Side with a brand new Trader Joe's right across the street and only a 1.5 block stroll to the subway! This one of a kind home in Seward Park has undergone a thorough modern redesign by noted owner/architect Gregory Colston. 7" Solid, long length, white oak floors grace the space throughout for a clean, airy and warm modern aesthetic.
Policies
Co-purchase allowed
Gifts allowed
Guarantors accepted
Parents buying allowed
Pets allowed
Cats and dogs allowed
Pied-a-terre allowed
Sublets allowed
Home features
Dishwasher
Washer/dryer
Building amenities
Services and facilities
Bike room
Doorman
Full-time, Virtual
Elevator
Laundry in building
Live-in super
Parking
Garage
Storage space
Wellness and recreation
Children's playroom
Gym
Shared outdoor space
No info on shared outdoor space
About the building
413-417 Grand St - Building 2
417 Grand Street, New York, NY 10002
Complex:
Seward Park Housing Cooperative432 units
20 stories
1960 built
For sale
7 available units for saleFor rent
0 available units for rentDocuments and permits
View documents and permitsProperty history
- Price Change: ↓ $105,000 (-5.0%) on 2/12/19
- Days on market: 171 days
| Date | Price | Event |
|---|---|---|
6/25/2019 | $1,995,000 | Sold by Halstead Real Estate |
5/3/2019 | $1,995,000 | No longer available |
2/12/2019 | $1,995,000 | Price decreased by 5% |
11/13/2018 | $2,100,000 | Listed by Halstead Real Estate |
Past listing photos
Sign in to take a closer look at how this home compares to similar homes.
Explore Lower East Side
Transit
| Location | Distance |
|---|---|
Fat East Broadway | 0.21 miles |
FJMZat Essex St | 0.25 miles |
FJMZat Delancey St | 0.26 miles |
BDat Grand St | 0.45 miles |
JZat Bowery | 0.53 miles |
About Lower East Side
Rental prices shown are base rent before any fees. Visit listings for cost and fees breakdown.
SalesMedian asking price
4 beds
$3.87M
RentalsMedian asking base rent
4 beds
$9,995
The narrow streets of the Lower East Side were once lined with tenement buildings, shirt factories and bialy shops. Although a few vestiges of the neighborhood's immigrant heritage remain, many of the tenement buildings have been updated and now offer relatively affordable rental options to young New Yorkers looking to live right in the thick of Downtown Manhattan.
There's no getting around it - the LES is a major nightlife destination. In this part of the city, last call is late and often negotiable -- especially if you're a regular. On weekend nights, the neighborhood is packed as crowds overflow from the local bars and take to the streets in search of a late-night falafel fix before heading onto the next party. During the day, the neighborhood chills out as residents nurse their hangovers or head to work slowly after stopping at one of the area's many trendy juice bars or coffee shops.



























































































































































