$2,500,000
For Sale
No longer available 10/21/2021
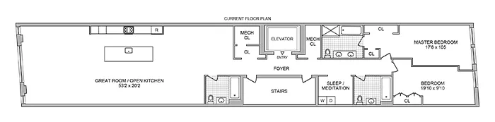
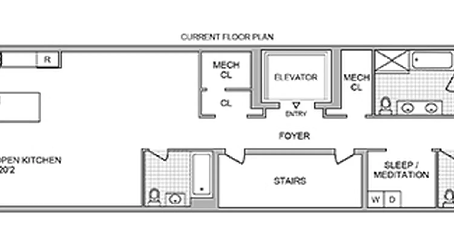
2,708 ft²
$923 per ft²
7 rooms
2 beds
3 baths
Hybrid
- Fulton/Seaport
Resale
Seller's agents
This home has been saved by 57 users.
Listing by Compass, Corporate Broker, 110 5th Avenue, New York, NY 10011
Common charges
$740/mo
Estimated payment
$16,701/mo
Legal disclaimerAll calculations are estimates provided by StreetEasy for informational purposes only. Actual amounts or financing terms may vary. Please contact your mortgage provider for specifics.Taxes
$1,460/mo
Tax abatement
No info
About
Seller’s agent
description
Luxury Live Auction! Bidding to start from $ 2,500,000.00! Harcourts Auctions Certified & Transparent Non-Distressed Auction Platform! Live Auction Thursday, October 21, 2021, at 3:00 pm EDT. No Buyer Premium. Due Diligence Package Available. Download at https://liveauction.link/42Ann5
All offers are encouraged. Submit an offer to stop auction -- loan or cash. Easy process to register to bid.
Policies
Pets allowed
Cats and dogs allowed
Home features
Central air
Dishwasher
Hardwood floors
View
City
Washer/dryer
Building amenities
Services and facilities
Bike room
Doorman
Virtual
Elevator
Laundry in building
Package room
Storage space
Locker/cage
Wellness and recreation
No info on wellness and recreation
Shared outdoor space
No info on shared outdoor space
About the building
42 Ann Street
42 Ann Street, New York, NY 10038
7 units
10 stories
1900 built
For sale
0 available units for saleFor rent
0 available units for rentDocuments and permits
View documents and permitsProperty history
- Price Change: No changes
- Days on market: 24 daysThis is the number of days the listing has been on StreetEasy.
| Date | Price | Event |
|---|---|---|
7/28/2022 | $3,250,000 | |
4/1/2022 | $3,250,000 | |
3/17/2022 | $3,250,000 | |
1/20/2022 | $2,500,000 | No longer available |
10/21/2021 | $2,500,000 | Temporarily off market |
Past listing photos
Sign in to take a closer look at how this home compares to similar homes.
Explore Fulton/Seaport
Transit
| Location | Distance |
|---|---|
| under 500 feet |
| 0.16 miles |
| 0.17 miles |
| 0.18 miles |
| 0.2 miles |
















































































































































































