$7,800
For Rent
Base rent only. For total monthly price and additional fees, see .
Delisted 7/21/2021
- ft²
8 rooms
6 beds
3 baths
Two-family home
- Park Slope
Under NYC law, you can't be charged a broker fee if you didn't hire a broker.
Listed By
This home has been saved by 28 users.
Listing by Compass, Corporate Broker, 514 2nd Street, Brooklyn, NY 11215
Unavailable
Delisted on 7/21/2021
Days on market
5 days
Last price change
No changes
About
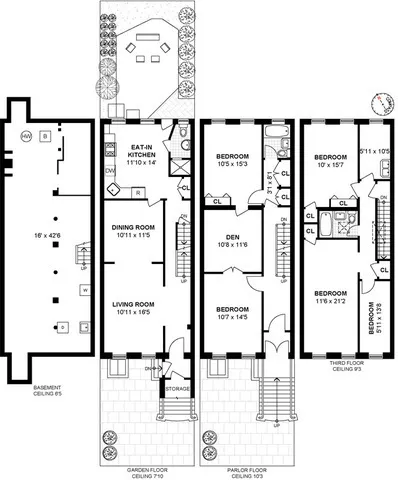
No FEE! A beautiful Townhouse on 8th Street to make your home. This charming three story brownstone has stunning original parquet floors. There are two private entrances. One at garden level and one on the parlor level. As you enter through the garden level entrance there is a spacious living room that opens to a formal dining room. The warm and inviting eat-in-kitchen has granite counter tops, lovely wooden cabinets and is equipped with a dishwasher.
Policies
Sorry, policy info isn’t available right now. Check back later.
Home features
Dishwasher
Hardwood floors
Private outdoor space
Garden
Building amenities
Services and facilities
Laundry in building
Wellness and recreation
Children's playroom
Shared outdoor space
No info on shared outdoor space
About the building
429 8th Street
429 8th Street, Brooklyn, NY 11215
2 units
2 stories
1901 built
Property history
Prices shown are base rent only. For total monthly price and additional fees, see .
| Date | Base rent | Event |
|---|---|---|
7/21/2021 | $7,800 | Delisted by Compass |
7/16/2021 | $7,800 | Listed by Compass |
5/16/2017 | $7,495 | |
5/8/2017 | $7,495 | Price decreased by 6% |
4/2/2017 | $7,995 | Price decreased by 3% |
Past listing photos
Sign in to take a closer look at how this home compares to similar homes.
Explore Park Slope
Transit
| Location | Distance |
|---|---|
Fat 7th Av | under 500 feet |
Fat Prospect Park–15 St | 0.43 miles |
FGRat 9th St | 0.45 miles |
Fat 4th Av | 0.48 miles |
Rat Prospect Av | 0.65 miles |
About Park Slope
Rental prices shown are base rent before any fees. Visit listings for cost and fees breakdown.
SalesMedian asking price
6 beds
$3.5M
Park Slope has a tranquil, easygoing vibe and can almost feel suburban. Strollers and children of all ages are a constant presence on sidewalks, as are shoppers patronizing local boutiques and dog walkers heading up to the park. Residents are Brooklynites through and through and tend to be socially conscious, artistically minded, and committed to their community. At night, a casual restaurant scene comes alive. For anyone looking for a night out, there are plenty of beer gardens and wine bars to patronize, especially in the South Slope, but don't go looking for dance clubs.
Learn more about Park SlopeSimilar homes
Prices shown are base rent only and don't include any fees. Visit each listing to see a complete cost breakdown.
Similar Homes looks at ad spend and other factors like location, price, and number of beds and baths.







































































































































