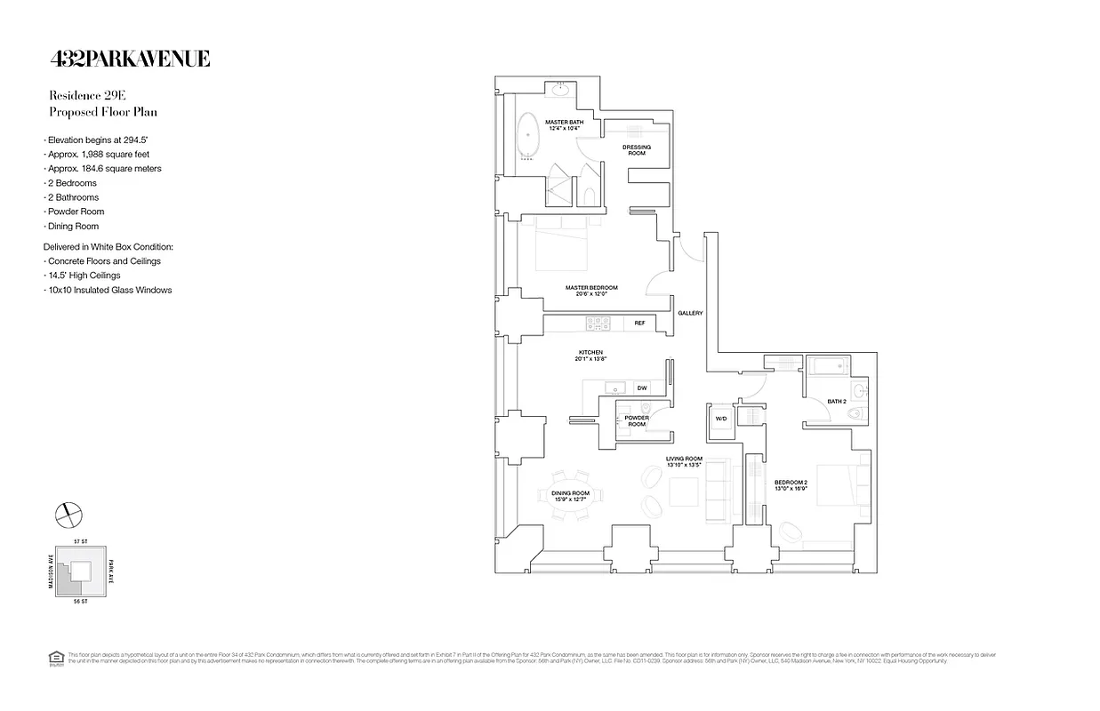
1,988 ft²
$1,519 per ft²
5 rooms
2 beds
2.5 baths
Condo
- Midtown
Sponsor unit
Sponsor unitA unit being sold for the first time. It’s typically owned by the building. For condos, this is often the developer. For co-ops, this is often the building’s original owner before it went co-op.
recorded sale
Sold on 10/22/2024
Verified by closing records
Last listed for $5,750,000
Seller's agents
This home has been saved by 155 users.
Listing by Douglas Elliman, Limited Liability Broker, 575 Madison Avenue, New York, NY 10022 | Brokerage Listing ID: 4551673
Common charges
$7,328/mo
Estimated payment
$40,315/mo
Legal disclaimerAll calculations are estimates provided by StreetEasy for informational purposes only. Actual amounts or financing terms may vary. Please contact your mortgage provider for specifics.Taxes
$3,848/mo
Tax abatement
No info
About
Seller’s agent
Buyer’s agent
description
Bring your Architect! This is one of the last Sponsor Residences at 432 Park Avenue! Rare opportunity to create a custom-designed, 2 bedroom 2.5 bathroom residence at 432 Park Avenue. This 1,988 square foot residence is being offered for the first time as an exclusive white box opportunity. The Sponsor’s proposed a floor plan opens into a gracious gallery with a lovely corner living and dining room.
Policies
Sorry, policy info isn’t available right now. Check back later.
Home features
No info on home features
Building amenities
Services and facilities
Doorman
Full-time
Elevator
Parking
Valet service
Wellness and recreation
Children's playroom
Gym
Swimming pool
Shared outdoor space
Garden
About the building
432 Park Avenue
432 Park Avenue, New York, NY 10022
125 units
96 stories
2015 built
For sale
11 available units for saleFor rent
0 available units for rentDocuments and permits
View documents and permitsProperty history
- Price Change: ↓ $1,245,000 (-17.8%) on 1/13/23
- Days on market: 1369 daysThis is the number of days the listing has been on StreetEasy.
| Date | Price | Event |
|---|---|---|
10/22/2024 | $3,021,034 | Sold by Douglas Elliman |
10/22/2024 | $5,750,000 | In contract |
8/29/2024 | $5,750,000 | Listed by Douglas Elliman |
6/20/2024 | $5,750,000 | In contract |
1/13/2023 | $5,750,000 | Price decreased by 18% |
Past listing photos
Sign in to take a closer look at how this home compares to similar homes.
Explore Midtown
Transit
| Location | Distance |
|---|---|
EMat 5th Av–53rd St | 0.16 miles |
NRW456at Lexington Av/59th St | 0.18 miles |
NRat 59th St | 0.22 miles |
EM6at Lexington Av–53rd St | 0.23 miles |
EM6at 51st St | 0.29 miles |
About Midtown
Rental prices shown are base rent before any fees. Visit listings for cost and fees breakdown.
SalesMedian asking price
2 beds
$3M
RentalsMedian asking base rent
2 beds
$7,667
If you're looking for a neighborhood with tree-lined streets and quaint coffee shops, Midtown isn't it. The neighborhood is more of a center for business than a residential community, but it puts everything close at hand for those who dwell here. Skyscrapers rise above congested streets, tourists flock to Broadway shows and Times Square, and thousands of commuters pass through Grand Central Terminal, Pennsylvania Station, and the Port Authority Bus Terminal every day.
The real estate options in Midtown can be diverse; surprisingly affordable apartments can be found alongside some of the city's most expensive properties. The headquarters of many global corporations line Sixth Avenue, while Fifth Avenue is an upscale retail destination with stores from some of the world's best-known brands.






















































































































































































