- ft²
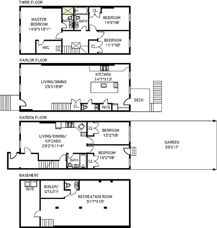
10 rooms
5 beds
4 baths
Two-family home
- Stuyvesant Heights
recorded sale
Sold on 7/20/2015
Verified by closing records
Last listed for $1,350,000
Seller's agent
This home has been saved by 81 users.
Listing by Corcoran, Limited Liability Broker, 1413 Fulton Street, Brooklyn, NY 11216 | Brokerage Listing ID: 3407663
Common charges
Not applicable
Estimated payment
$6,841/mo
Legal disclaimerAll calculations are estimates provided by StreetEasy for informational purposes only. Actual amounts or financing terms may vary. Please contact your mortgage provider for specifics.Taxes
$191/mo
Tax abatement
No info
About
Seller’s agent
description
Exquisite 3-story, 2-family fully gut renovated brownstone located in picturesque Bed Stuy one of the most sought after neighborhoods in Brooklyn. Enter the property to immediately fall in love with the intricate craftsmanship and sprawling living/dining room with modern iron and wood staircase, custom built in storage, wide-plank flooring, and brilliant light from encasement style windows.
Policies
Sorry, policy info isn’t available right now. Check back later.
Home features
No info on home features
Building amenities
No info on building amenities
About the building
439A Monroe Street
439a Monroe Street, Brooklyn, NY 11221
2 units
3 stories
1950 built
For sale
0 available units for saleFor rent
0 available units for rentDocuments and permits
View documents and permitsProperty history
- Price Change: No changes
- Days on market: 74 daysThis is the number of days the listing has been on StreetEasy.
| Date | Price | Event |
|---|---|---|
11/26/2024 | $2,150,000 | |
10/6/2024 | $2,265,000 | |
7/24/2024 | $2,265,000 | |
7/20/2015 | $1,390,500 | Sold by Corcoran |
7/30/2015 | $1,390,500 | No longer available |
Past listing photos
Sign in to take a closer look at how this home compares to similar homes.
Explore Stuyvesant Heights
Transit
| Location | Distance |
|---|---|
ACat Kingston–Throop | 0.48 miles |
Gat Bedford–Nostrand Avs | 0.65 miles |
ACat Utica Av | 0.65 miles |
ACat Nostrand Av | 0.68 miles |
JMZat Myrtle Av | 0.72 miles |




































































































