$6,500
For Rent
Base rent only. For total monthly price and additional fees, see .
Temporarily off market 4/11/2026
900 ft²
$86 per ft²
3 rooms
1 bed
1 bath
Condo
- Lincoln Square
Under NYC law, you can't be charged a broker fee if you didn't hire a broker.
Listed By
This home has been saved by 50 users.
Listing by Barkin and Associates, Limited Liability Broker, 350 West 57th, New York, NY 10019
Unavailable
Temporarily off market on 4/11/2026
Days on market
11 days
Last price change
No changes
About
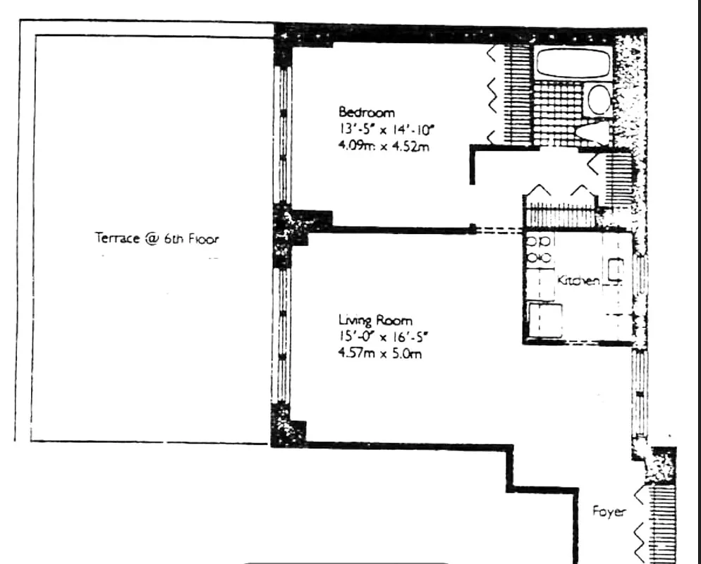
FURNISHED ONLY THROUGH NOVEMBER 2026
STUNNING, MINT, SPACIOUS ONE BEDROOM WITH HUGE PRIVATE TERRACE AND BEAUTIFULLY FURNISHED.
This exquisite renovated apartment features an open chef’s kitchen with state of the art appliances, hardwood floors and a washer/dryer.
45 west 67th residences is a white glove condominium with a 24 hour doorman and concierge.and is perfectly located 1/2 a block from Central Park and one block from Lincoln center.
Policies
Smoke-free
Home features
Central air
Dishwasher
Furnished
Hardwood floors
Private outdoor space
Terrace
View
City
Washer/dryer
Building amenities
Services and facilities
Bike room
Concierge
Doorman
Full-time
Elevator
Laundry in building
Live-in super
Parking
Valet service
Wellness and recreation
No info on wellness and recreation
Shared outdoor space
Garden
About the building
45 West 67th Street
45 West 67th Street, New York, NY 10023
173 units
31 stories
1983 built
Property history
Prices shown are base rent only. For total monthly price and additional fees, see .
| Date | Base rent | Event |
|---|---|---|
4/11/2026 | $6,500 | Temporarily off market |
4/8/2026 | $6,500 | Listed by Barkin and Associates |
4/1/2026 | $6,500 | Temporarily off market |
3/24/2026 | $6,500 | Listed by Barkin and Associates |
6/9/2024 | $5,750 |
Past listing photos
Sign in to take a closer look at how this home compares to similar homes.
Explore Lincoln Square
Transit
| Location | Distance |
|---|---|
1at 66th St–Lincoln Center | under 500 feet |
BCat 72nd St | 0.19 miles |
123at 72nd St | 0.31 miles |
ABCD1at 59th St–Columbus Circle | 0.35 miles |
BCat 81st St–Museum of Natural History | 0.57 miles |
About Lincoln Square
Rental prices shown are base rent before any fees. Visit listings for cost and fees breakdown.
SalesMedian asking price
1 bed
$972.25K
RentalsMedian asking base rent
1 bed
$5,400
Named after and defined by the Lincoln Center for the Performing Arts, Lincoln Square is home to the New York Philharmonic, the New York City Ballet and the Metropolitan Opera, among many other cultural institutions. The neighborhood blends the prewar architecture and and style of the Upper West Side with modern, tall residential buildings. Great subway access at Columbus Circle and proximity to Midtown make this neighborhood popular with those looking to be in the center of it all.
Learn more about Lincoln SquareSimilar homes
Prices shown are base rent only and don't include any fees. Visit each listing to see a complete cost breakdown.
Similar Homes looks at ad spend and other factors like location, price, and number of beds and baths.














































































































