$2,100
For Rent
Base rent only. For total monthly price and additional fees, see .
Rented 6/30/2021
- ft²
1 room
Studio
1 bath
Co-op
- West Chelsea
Under NYC law, you can't be charged a broker fee if you didn't hire a broker.
Listed By
This home has been saved by 19 users.
Listing by Corcoran, Limited Liability Broker, 221 Columbus Avenue, New York, NY 10023
Searching with a housing voucher, like Section 8?
Unavailable
Rented on 6/30/2021
Days on market
7 days
Last price change
No changes
About
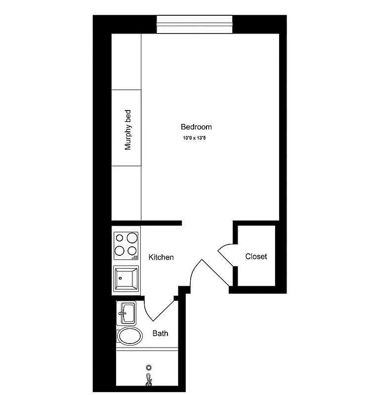
Amazing steal of a deal for this lovely studio apartment at 451 West 22nd St, a quaint townhouse building located on one of Chelsea's most beautiful tree-line blocks.
This apartment is a "smart space" and comes with a Murphy bed, custom-designed couch, a coffee table that transforms into a desk and a large flat screen wall mounted TV.
Policies
Co-purchase allowed
Gifts allowed
Guarantors accepted
Parents buying allowed
Pets allowed
Cats and dogs allowed
Pied-a-terre allowed
Home features
Furnished
Building amenities
Sorry, building amenities aren't available right now. Check back later.
About the building
451 West 22nd Street
451 West 22nd Street, New York, NY 10011
8 units
5 stories
1900 built
Property history
Prices shown are base rent only. For total monthly price and additional fees, see .
| Date | Base rent | Event |
|---|---|---|
7/26/2021 | $2,100 | Rented by Corcoran |
6/30/2021 | $2,100 | Temporarily off market |
6/23/2021 | $2,100 | Listed by Corcoran |
7/7/2020 | $2,000 | |
6/12/2020 | $2,000 |
Past listing photos
Sign in to take a closer look at how this home compares to similar homes.
Explore West Chelsea
Transit
| Location | Distance |
|---|---|
CEat 23rd St | 0.26 miles |
ACELat 14th St | 0.39 miles |
1at 23rd St | 0.42 miles |
1at 18th St | 0.47 miles |
ACELat 8th Av | 0.48 miles |
Similar homes
Prices shown are base rent only and don't include any fees. Visit each listing to see a complete cost breakdown.
Similar Homes looks at ad spend and other factors like location, price, and number of beds and baths.













































































