$2,500
For Rent
Base rent only. For total monthly price and additional fees, see .
No longer available 7/7/2023
- ft²
2 rooms
Studio
1 bath
Condo
- Historic Downtown
Listed By
Liberty Realty
This home has been saved by 20 users.
Listing by Liberty Realty | MLS #: 230010198
Searching with a housing voucher, like Section 8?
Unavailable
No longer available on 7/7/2023
Days on market
17 days
Last price change
↓ $100 (-3.8%) on 6/26/23
About
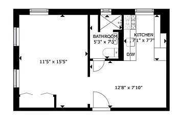
Newly renovated studio with ON-SITE PARKING available, located directly across the street from Van Vorst Park. Heat and hot water included! Brand new two-tone kitchen cabinets, quartz countertops, appliances featuring dishwasher and brand new refrigerator and gas stove. New glass backsplash. Refinished hardwood floors. The corner building allows for lots of windows and the south/east exposure provides abundant natural sunlight.
Policies
Sorry, policy info isn’t available right now. Check back later.
Home features
Dishwasher
Building amenities
Services and facilities
Storage space
Wellness and recreation
No info on wellness and recreation
Shared outdoor space
No info on shared outdoor space
About the building
457 Jersey Avenue
457 Jersey Avenue, Jersey City, NJ 07302
- units
- stories
- built
For rent
0 available units for rentProperty history
Prices shown are base rent only. For total monthly price and additional fees, see .
| Date | Base rent | Event |
|---|---|---|
7/7/2023 | $2,500 | No longer available |
6/26/2023 | $2,500 | Price decreased by 4% |
6/20/2023 | $2,600 | Listed by Liberty Realty |
Sign in to take a closer look at how this home compares to similar homes.
Explore Historic Downtown
Transit
| Location | Distance |
|---|---|
HBLRat Jersey Ave. | 0.22 miles |
PATHat Grove Street Station | 0.3 miles |
HBLRat Marin Blvd. | 0.36 miles |
HBLRat Essex St. | 0.73 miles |
HBLRat Harborside | 0.74 miles |
Similar homes
Prices shown are base rent only and don't include any fees. Visit each listing to see a complete cost breakdown.
Similar Homes looks at ad spend and other factors like location, price, and number of beds and baths.










































































































































