- ft²
10 rooms
6 beds
5+ baths
Two-family home
- Bedford-Stuyvesant
recorded sale
Sold on 4/13/2017
Verified by closing records
Last listed for $2,499,000
Seller's agents
This home has been saved by 79 users.
Listing by Corcoran, Limited Liability Broker, 1413 Fulton Street, Brooklyn, NY 11216 | Brokerage Listing ID: 3717172
Common charges
Not applicable
Estimated payment
$13,080/mo
Legal disclaimerAll calculations are estimates provided by StreetEasy for informational purposes only. Actual amounts or financing terms may vary. Please contact your mortgage provider for specifics.Taxes
$560/mo
Tax abatement
No info
About
Seller’s agent
Buyer’s agent
description
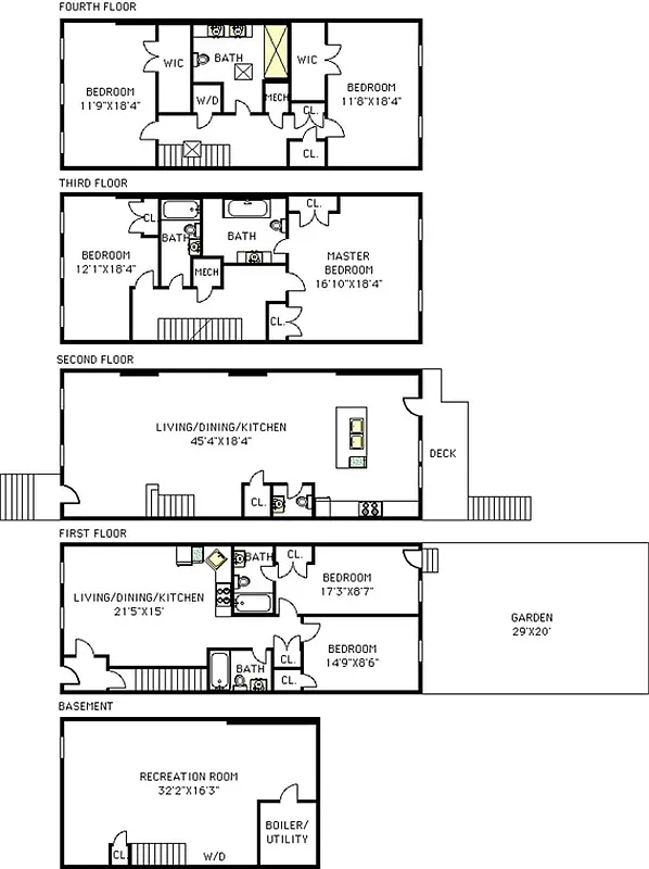
Impressive 20x50ft building size allows this 4-story, 2-family gut renovated brick townhouse to feature an owners triplex with 4 sprawling bedrooms and 3.5 huge bathrooms plus a 2 bedroom, 2 bathroom garden rental. Creative yet classic design throughout with Baroque style arched front door, herringbone hardwood floors and intricate iron work throughout plus large double pained windows creating a quiet living environment.
Policies
Sorry, policy info isn’t available right now. Check back later.
Home features
No info on home features
Building amenities
Sorry, building amenities aren't available right now. Check back later.
About the building
459 Franklin Avenue
459 Franklin Avenue, Brooklyn, NY 11238
2 units
3 stories
1931 built
For sale
0 available units for saleFor rent
0 available units for rentDocuments and permits
View documents and permitsProperty history
- Price Change: ↓ $396,000 (-13.7%) on 12/7/16
- Days on market: 171 daysThis is the number of days the listing has been on StreetEasy.
| Date | Price | Event |
|---|---|---|
4/13/2017 | $2,470,000 | Sold by Corcoran |
4/13/2017 | $2,470,000 | No longer available |
4/13/2017 | $2,470,000 | Sold by Corcoran |
2/6/2017 | $2,499,000 | No longer available |
2/6/2017 | $2,499,000 | In contract |
Past listing photos
Sign in to take a closer look at how this home compares to similar homes.
Explore Bedford-Stuyvesant
Transit
| Location | Distance |
|---|---|
ACSat Franklin Av | 0.13 miles |
ASat Franklin Av | 0.14 miles |
ACat Nostrand Av | 0.36 miles |
Gat Bedford–Nostrand Avs | 0.43 miles |
Gat Classon Av | 0.44 miles |
About Bedford-Stuyvesant
Rental prices shown are base rent before any fees. Visit listings for cost and fees breakdown.
SalesMedian asking price
6 beds
$2.6M
Bedford-Stuyvesant is a vast Brooklyn neighborhood filled with historic brownstones. Fans of Victorian architecture will appreciate the striking abodes in the leafy historic district.
Learn more about Bedford-Stuyvesant



















































































































































































