7,522 ft²
$2,060 per ft²
12 rooms
7 beds
6+ baths
House
- Upper East Side
recorded sale
Sold on 5/18/2018
Verified by closing records
Last listed for $16,500,000
Seller's agent
This home has been saved by 226 users.
Listing by Corcoran, Limited Liability Broker, 110 Fifth Avenue, New York, NY 10011 | Brokerage Listing ID: 3685386
Common charges
Not applicable
Estimated payment
$106,740/mo
Legal disclaimerAll calculations are estimates provided by StreetEasy for informational purposes only. Actual amounts or financing terms may vary. Please contact your mortgage provider for specifics.Taxes
$11,162/mo
Tax abatement
No info
About
Seller’s agent
Buyer’s agent
description
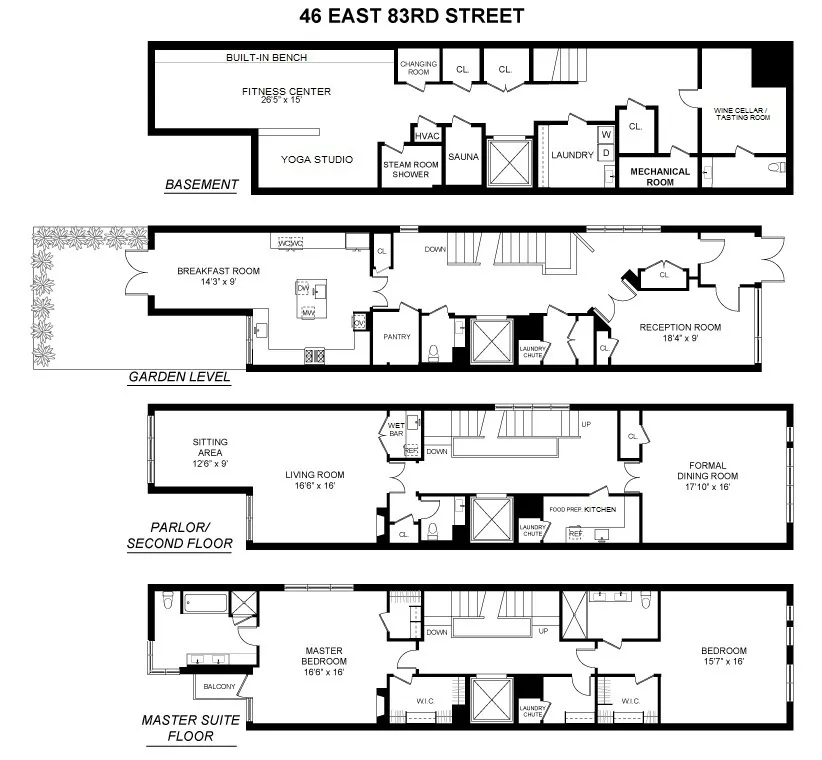
Located between Madison and Park Avenues, 46 East 83rd Street is an astonishing seven level brand new from the ground up modern creation that melds state of the art technology, luxury materials, and an artist's eye to bring this brand new townhouse to the old world of the Upper East Side.
Ground up construction built at 18' by 85', this home has six bedrooms, a spectacular master suite floor, serene...
Policies
Sorry, policy info isn’t available right now. Check back later.
Home features
Central air
Dishwasher
Fireplace
Private outdoor space
Balcony, Garden, Terrace
Washer/dryer
Building amenities
Services and facilities
Storage space
Wellness and recreation
No info on wellness and recreation
Shared outdoor space
Roof deck
About the building
46 East 83rd Street
46 East 83rd Street, New York, NY 10028
1 unit
5 stories
2016 built
For sale
0 available units for saleFor rent
0 available units for rentDocuments and permits
View documents and permitsProperty history
- Price Change: ↓ $1,000,000 (-5.7%) on 2/27/18
- Days on market: 659 daysThis is the number of days the listing has been on StreetEasy.
| Date | Price | Event |
|---|---|---|
9/13/2016 | $0 | |
5/18/2018 | $15,500,000 | Sold by Corcoran |
5/18/2018 | $16,500,000 | No longer available |
4/25/2018 | $16,500,000 | In contract |
2/27/2018 | $16,500,000 | Price decreased by 6% |
Past listing photos
Sign in to take a closer look at how this home compares to similar homes.
Explore Upper East Side
Transit
| Location | Distance |
|---|---|
456at 86th St | 0.22 miles |
6at 77th St | 0.33 miles |
Qat 86th St | 0.4 miles |
BCat 81st St–Museum of Natural History | 0.67 miles |
Qat 72nd St | 0.67 miles |
About Upper East Side
Rental prices shown are base rent before any fees. Visit listings for cost and fees breakdown.
SalesMedian asking price
7 beds
$20.9M
When many people think of the Upper East Side, they think of a quiet, tree-lined urban expanse filled with posh residents and purebred dogs. There's some reality behind the neighborhood's old-money image: The blocks between Park and Fifth avenues are home to some of Manhattan's wealthiest residents, many of whom dwell in stately co-ops or sleek new condos overseen by stiffly collared doormen.
But there's a lot more happening on the Upper East Side. Museum Mile throngs with tourists, street artists, and lovers of the arts, drawn to its abundance of high culture. And the eastern side of the neighborhood, toward Yorkville, exhibits a less rarefied character. Second Avenue is home to sports bars, pubs, and some excellent restaurants. A trendy renaissance is in the offing here, sparked by young professionals drawn by some surprisingly good housing prices (for Manhattan). The avenues and commerce-lined thoroughfares can be hectic, but many streets on the Upper East Side are blessedly quiet — just one more way in which this oft-stereotyped neighborhood can be a surprise.




































































































































































