- ft²
7 rooms
4 beds
3.5 baths
Two-family home
- Clinton Hill
recorded sale
Sold on 10/11/2012
Verified by closing records
Last listed for $975,000
Seller's agent
Abdul Muid
Corcoran
This home has been saved by 32 users.
Listing by Corcoran, Limited Liability Broker | Brokerage Listing ID: 2333118
Common charges
Not applicable
Estimated payment
$4,999/mo
Legal disclaimerAll calculations are estimates provided by StreetEasy for informational purposes only. Actual amounts or financing terms may vary. Please contact your mortgage provider for specifics.Taxes
$196/mo
Tax abatement
No info
About
Seller’s agent
Buyer’s agent
description
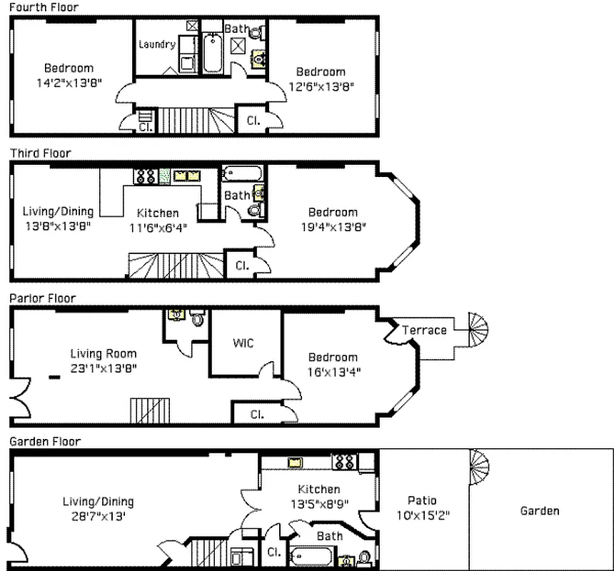
460 Classon is a four story legal two family residence. Configured as an upper triplex above a ground/garden floor studio apartment. Fully renovated in 2005, the upper triplex features four large bedrooms, two and a half bathrooms, an open kitchen, laundry room and a deck that leads to a landscaped garden. Complete with oak floors, new electrical/plumbing and an open kitchen with GE appliances.
Policies
Sorry, policy info isn’t available right now. Check back later.
Home features
No info on home features
Building amenities
No info on building amenities
About the building
460 Classon Avenue
460 Classon Avenue, Brooklyn, NY 11238
2 units
3 stories
1899 built
For sale
0 available units for saleFor rent
0 available units for rentDocuments and permits
View documents and permitsProperty history
- Price Change: No changes
- Days on market: 152 daysThis is the number of days the listing has been on StreetEasy.
| Date | Price | Event |
|---|---|---|
10/11/2012 | $1,050,000 | Sold by Corcoran |
10/12/2012 | $975,000 | No longer available |
7/8/2012 | $975,000 | In contract |
5/13/2012 | $975,000 | Listed by Corcoran |
5/23/2019 | $960,000 |
Past listing photos
Sign in to take a closer look at how this home compares to similar homes.
Explore Clinton Hill
Transit
| Location | Distance |
|---|---|
ACSat Franklin Av | 0.29 miles |
Cat Clinton & Washington Avs | 0.29 miles |
ASat Franklin Av | 0.29 miles |
Gat Classon Av | 0.31 miles |
Gat Bedford–Nostrand Avs | 0.41 miles |






































































































