- ft²
6 rooms
2 beds
1 bath
Co-op
- Park Slope
Resale
recorded sale
Sold on 7/30/2025
Verified by closing records
Last listed for $1,995,000
Seller's agent
This home has been saved by 73 users.
Listing by Townsley & Gay, LLC, Limited Liability Broker, 177 Seventh Avenue, Brooklyn, NY 11215
Maintenance fees
$1,200/mo
Estimated payment
$11,747/mo
Taxes
Included in maintenance fees
Tax abatement
No info
About
Seller’s agent
Buyer’s agent
description
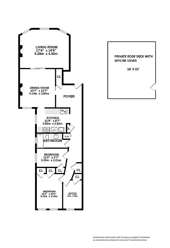
Welcome to apartment 4R at 478 3rd Street, a beautifully proportioned 6 room classic, with all the modern comforts and featuring a private roof deck with stunning skyline views. This is Park Slope's premier location.
This top floor residence reflects timeless beauty,
brownstone details, and truly excellent living spaces. Sun drenched and spacious, it seamlessly combines pre war beauty and present day luxury.
Policies
Pets allowed
Cats and dogs allowed
Home features
Dishwasher
Fireplace
Decorative, Wood
Hardwood floors
Private outdoor space
Roof deck
View
City, Skyline
Washer/dryer
Building amenities
Services and facilities
Bike room
Storage space
Locker/cage
Wellness and recreation
No info on wellness and recreation
Shared outdoor space
No info on shared outdoor space
About the building
478 3rd Street
478 3rd Street, Brooklyn, NY 11215
8 units
4 stories
1940 built
For sale
0 available units for saleFor rent
0 available units for rentDocuments and permits
View documents and permitsProperty history
- Price Change: No changes
- Days on market: 41 days
| Date | Price | Event |
|---|---|---|
7/30/2025 | $1,999,000 | Sold by Townsley & Gay, LLC |
4/29/2025 | $1,995,000 | In contract |
3/19/2025 | $1,995,000 | Listed by Townsley & Gay, LLC |
3/28/2024 | $1,850,000 | |
1/24/2024 | $1,750,000 |
Past listing photos
Sign in to take a closer look at how this home compares to similar homes.
Explore Park Slope
Transit
| Location | Distance |
|---|---|
Fat 7th Av | 0.27 miles |
FGRat 9th St | 0.47 miles |
Rat Union St | 0.47 miles |
Fat 4th Av | 0.51 miles |
23at Grand Army Plaza | 0.53 miles |
About Park Slope
Rental prices shown are base rent before any fees. Visit listings for cost and fees breakdown.
SalesMedian asking price
2 beds
$1.47M
RentalsMedian asking base rent
2 beds
$4,795
Park Slope has a tranquil, easygoing vibe and can almost feel suburban. Strollers and children of all ages are a constant presence on sidewalks, as are shoppers patronizing local boutiques and dog walkers heading up to the park. Residents are Brooklynites through and through and tend to be socially conscious, artistically minded, and committed to their community. At night, a casual restaurant scene comes alive. For anyone looking for a night out, there are plenty of beer gardens and wine bars to patronize, especially in the South Slope, but don't go looking for dance clubs.
Learn more about Park Slope











































































































































