$1,395,000
For Sale
No longer available 10/4/2025
- ft²
3 rooms
1 bed
2 baths
Co-op
- Gramercy Park
Resale
Seller's agent
This home has been saved by 230 users.
Listing by Brown Harris Stevens, Real Estate Principal Office, 445 Park Avenue, New York, NY 10022
Maintenance fees
$2,882/mo
Estimated payment
$9,495/mo
Legal disclaimerAll calculations are estimates provided by StreetEasy for informational purposes only. Actual amounts or financing terms may vary. Please contact your mortgage provider for specifics.Taxes
Included in maintenance fees
Tax abatement
No info
About
Sellerâs agent
description
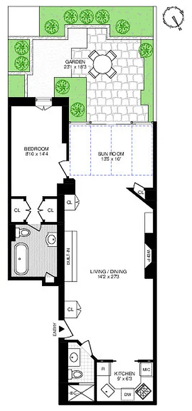
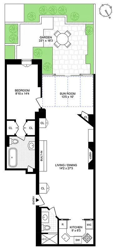
Welcome to an extraordinary ground-floor townhouse apartment with a private landscaped garden. This sophisticated home is ideal for a discerning buyer who appreciates the property's historical roots as well as its modern luxuries. A one-bedroom sanctuary featuring two full bathrooms and a well-designed kitchen equipped with Miele and Sub Zero appliances, also features a wood-burning fireplace and central air.
Policies
Pets allowed
Cats and dogs allowed
Home features
Central air
Fireplace
Wood
Private outdoor space
Garden
Building amenities
Services and facilities
Elevator
Laundry in building
Storage space
Wellness and recreation
No info on wellness and recreation
Shared outdoor space
No info on shared outdoor space
About the building
48 Gramercy Park North
48 Gramercy Park North, New York, NY 10010
8 units
5 stories
1930 built
For sale
0 available units for saleFor rent
0 available units for rentDocuments and permits
View documents and permitsProperty history
- Price Change: â $180,000 (-11.4%) on 9/16/25
- Days on market: 429 daysThis is the number of days the listing has been on StreetEasy.
| Date | Price | Event |
|---|---|---|
1/3/2026 | $1,395,000 | No longer available |
10/4/2025 | $1,395,000 | Temporarily off market |
9/16/2025 | $1,395,000 | Price decreased by 11% |
4/15/2025 | $1,575,000 | Listed by Brown Harris Stevens |
2/28/2025 | $1,575,000 | In contract |
Sign in to take a closer look at how this home compares to similar homes.
Explore Gramercy Park
Transit
| Location | Distance |
|---|---|
6at 23rd St | 0.11 miles |
RWat 23rd St | 0.27 miles |
LNQRW456at 14th StâUnion Square | 0.3 miles |
6at 28th St | 0.34 miles |
Lat 3rd Av | 0.36 miles |
About Gramercy Park
Rental prices shown are base rent before any fees. Visit listings for cost and fees breakdown.
SalesMedian asking price
1 bed
$1.05M
RentalsMedian asking base rent
1 bed
$4,650
In the early 20th century, Gramercy Park was synonymous with luxury. Some of the most prominent New Yorkers lived in grand houses along the neighborhood's eponymous park. Today, Gramercy Park is a brief respite from the hustle and bustle of Downtown Manhattan that still retains an old-world vibe. It's not uncommon to see residents dressed in tweed and loafers tottering down Irving Place, a quiet commercial stretch that offers a mix of local shops, restaurants, and pubs. As you head further east, the avenues get busier and more generic.
Gramercy's side streets are lined with walk-ups and large apartment buildings and are more casual than the blocks surrounding the actual park, attracting residents looking for a quintessentially nice New York City neighborhood.










































































































