3,300 ft²
$695 per ft²
11 rooms
5 beds
4.5 baths
Two-family home
- Stuyvesant Heights
Resale
reported sale
Sold on 5/8/2025
Not yet verified by closing records
Seller's agents
This home has been saved by 27 users.
Listing by Compass, Corporate Broker, 110 5th Avenue, New York, NY 10011
Common charges
Not applicable
Estimated payment
$12,819/mo
Taxes
$494/mo
Tax abatement
No info
About
Seller’s agent
description
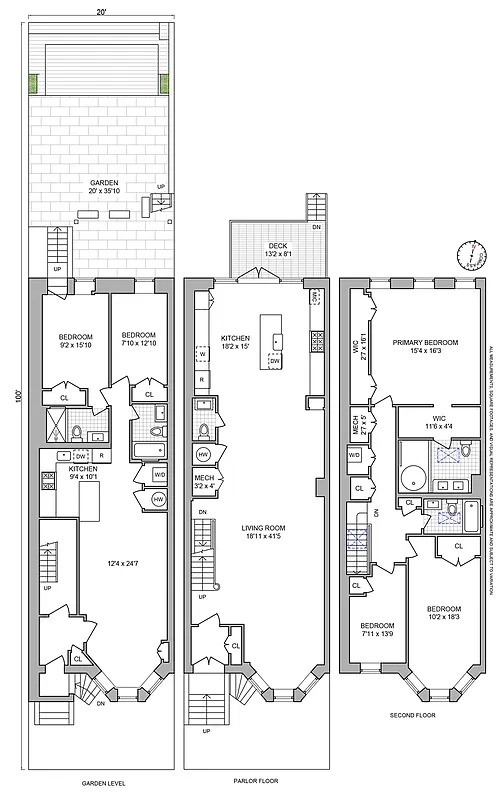
Originally built in 1899, 483 Bainbridge has been meticulously gut-renovated to seamlessly blend historic charm with modern elegance. This three-story, two-family townhouse offers a thoughtfully designed layout featuring a spacious owner's duplex with three bedrooms, two full bathrooms, and one half bathroom, along with a garden-level two-bedroom, two-bathroom rental unit.
Policies
Sorry, policy info isn’t available right now. Check back later.
Home features
Central air
Dishwasher
Hardwood floors
Private outdoor space
Balcony, Garden
Washer/dryer
Building amenities
Services and facilities
Laundry in building
Wellness and recreation
No info on wellness and recreation
Shared outdoor space
No info on shared outdoor space
About the building
483 Bainbridge Street
483 Bainbridge Street, Brooklyn, NY 11233
2 units
3 stories
1899 built
For sale
0 available units for saleFor rent
0 available units for rentDocuments and permits
View documents and permitsProperty history
- Price Change: No changes
- Days on market: 83 days
| Date | Price | Event |
|---|---|---|
5/8/2025 | $2,295,000 | Sold by Compass |
3/25/2025 | $2,295,000 | In contract |
2/25/2025 | $2,295,000 | Listed by Compass |
1/28/2025 | $2,295,000 | |
1/15/2025 | $2,295,000 |
Past listing photos
Sign in to take a closer look at how this home compares to similar homes.
Explore Stuyvesant Heights
Transit
| Location | Distance |
|---|---|
Jat Halsey St | 0.23 miles |
ACat Ralph Av | 0.33 miles |
JZat Chauncey St | 0.33 miles |
ACat Rockaway Av | 0.35 miles |
JZat Gates Av | 0.58 miles |



































































































































































