$1,900
For Rent
Base rent only. For total monthly price and additional fees, see .
No longer available 12/11/2025
600 ft²
$38 per ft²
2 rooms
1 bed
1 bath
House
- The Heights
Listed By
Name Not Provided
Hotpads Rentals
This home has been saved by 5 users.
Listing by Hotpads Rentals | Brokerage Listing ID: 1puycs7ddz4b5-adrttq6qe6sa
Searching with a housing voucher, like Section 8?
Unavailable
No longer available on 12/11/2025
Days on market
5 days
Last price change
No changes
About
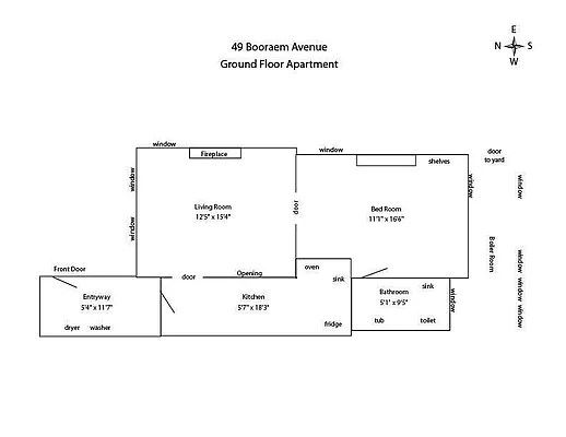
Charming, 1 bedroom apartment for rent in turn-of-the-century, Victorian two-family home on quiet street. 600 square feet Available January 1st, 2026 or possibly sooner. $1,900/month rent Includes PARKING for 1 compact car Heat, hot water, cable & internet are tenants' responsibility. Tenant controls heat with programmable thermostat. LL pays for water & sewer. NO SMOKING, candles, vaping, etc.
Policies
Sorry, policy info isn’t available right now. Check back later.
Home features
No info on home features
Building amenities
No info on building amenities
About the building
49 Booraem Avenue
49 Booraem Avenue, Jersey City, NJ 07307
- units
- stories
1890 built
For rent
0 available units for rentProperty history
Prices shown are base rent only. For total monthly price and additional fees, see .
| Date | Base rent | Event |
|---|---|---|
12/11/2025 | $1,900 | No longer available |
12/6/2025 | $1,900 | Listed by Hotpads Rentals |
Sign in to take a closer look at how this home compares to similar homes.
Explore The Heights
Transit
| Location | Distance |
|---|---|
HBLRat 2nd Street | 0.32 miles |
HBLRat 9th Street/Congress St | 0.86 miles |
PATHat Journal Square Station | 0.89 miles |
HBLRPATHat Hoboken Terminal | 1.14 miles |
PATHat Pavonia/Newport Station | 1.15 miles |
Similar homes
Prices shown are base rent only and don't include any fees. Visit each listing to see a complete cost breakdown.
Similar Homes looks at ad spend and other factors like location, price, and number of beds and baths.







































































