$7,000,000
For Sale
No longer available 6/12/2023
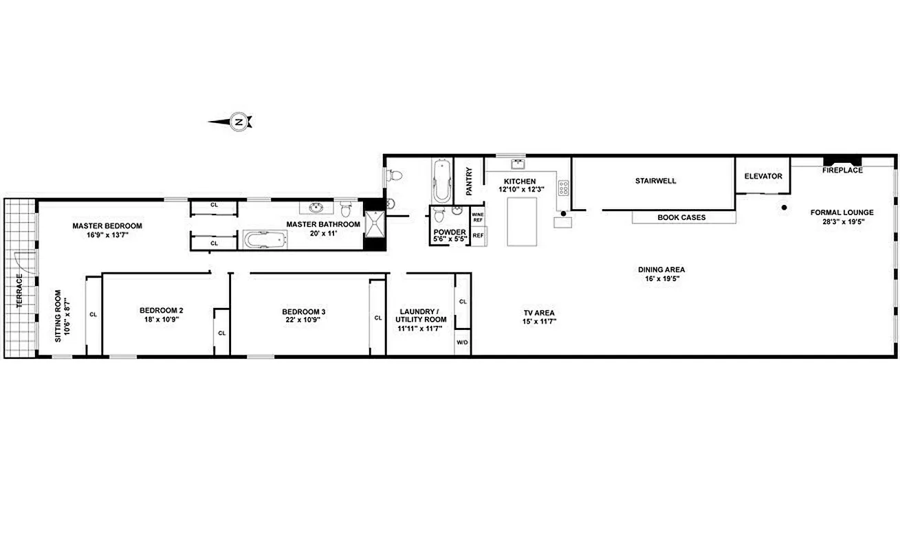
3,000 ft²
$2,333 per ft²
7 rooms
3 beds
2.5 baths
Hybrid
- Noho
Resale
Seller's agents
This home has been saved by 108 users.
Listing by Brown Harris Stevens, Real Estate Principal Office, 445 Park Avenue, New York, NY 10022
Common charges
$996/mo
Estimated payment
$43,435/mo
Legal disclaimerAll calculations are estimates provided by StreetEasy for informational purposes only. Actual amounts or financing terms may vary. Please contact your mortgage provider for specifics.Taxes
$1,924/mo
Tax abatement
No info
About
Seller’s agent
description
Beautifully Renovated Private Floor Loft with Three Bedrooms and Two and a Half Bathrooms Located in one of the Most Desirable Areas of Manhattan at 50 Bond Street. This Spectacular Home has Contemporary Finishes and Original Pre-War Loft Details. The Wooden Floors with a Four-Layer Sound Attenuating System, and Over-Sized European Tilt and Turn Windows Complement Extensive Brickwork and Rich Cast Iron Columns.
Policies
Sorry, policy info isn’t available right now. Check back later.
Home features
Central air
Dishwasher
Fireplace
Wood
Hardwood floors
Private outdoor space
Terrace
View
City, Skyline
Washer/dryer
Building amenities
Services and facilities
Bike room
Doorman
Virtual
Elevator
Laundry in building
Wheelchair access
Wellness and recreation
No info on wellness and recreation
Shared outdoor space
No info on shared outdoor space
About the building
50 Bond Street
50 Bond Street, New York, NY 10012
6 units
7 stories
1896 built
For sale
0 available units for saleFor rent
0 available units for rentDocuments and permits
View documents and permitsProperty history
- Price Change: No changes
- Days on market: 272 daysThis is the number of days the listing has been on StreetEasy.
| Date | Price | Event |
|---|---|---|
6/12/2023 | $7,000,000 | No longer available |
9/13/2022 | $7,000,000 | Listed by Brown Harris Stevens |
7/7/2021 | $7,000,000 | |
11/10/2020 | $7,000,000 | |
11/5/2020 | $7,000,000 |
Past listing photos
Sign in to take a closer look at how this home compares to similar homes.
Explore Noho
Transit
| Location | Distance |
|---|---|
BDFM6at Bleecker St | under 500 feet |
Fat 2nd Av | 0.17 miles |
BDFM6at Broadway–Lafayette St | 0.17 miles |
RWat 8th St–NYU | 0.24 miles |
6at Astor Place | 0.27 miles |












































































































































































