- ft²
3 rooms
1 bed
1 bath
Co-op
- Lower East Side
Resale
recorded sale
Sold on 2/2/2022
Verified by closing records
Last listed for $499,000
Seller's agents
This home has been saved by 143 users.
Listing by Brown Harris Stevens, Real Estate Principal Office, 445 Park Avenue, New York, NY 10022
Maintenance fees
$634/mo
Estimated payment
$3,141/mo
Taxes
Included in maintenance fees
Tax abatement
No info
About
Seller’s agent
Buyer’s agent
Description
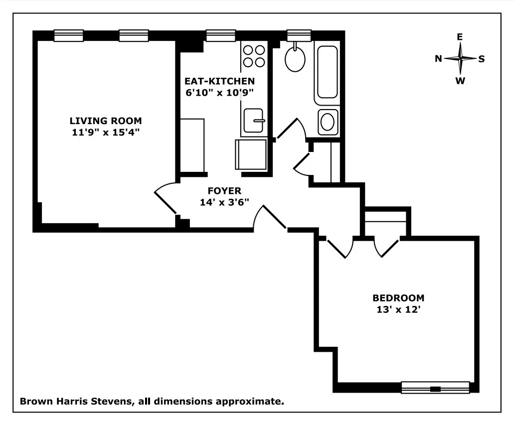
PRE-WAR 1-BED/1-BATH LES CO-OP
Spacious and Sunny 1 bedroom/1 bath in a coveted pre-war pet friendly building with great amenities including a secluded interior garden courtyard. This corner apartment faces East and West and gets natural light in every room.
The well-proportioned bedroom overlooks the courtyard and is large enough for a Queen size bed and large dresser.
Policies
Co-purchase allowed
Gifts allowed
Guarantors accepted
Parents buying allowed
Pets allowed
Cats and dogs allowed
Home features
Hardwood floors
View
Garden
Building amenities
Services and facilities
Bike room
Elevator
Laundry in building
Live-in super
Wellness and recreation
Gym
Shared outdoor space
Courtyard
About the building
504 Grand Street
504 Grand Street, New York, NY 10002
237 units
6 stories
1929 built
For sale
3 available units for saleFor rent
0 available units for rentDocuments and permits
View documents and permitsProperty history
- Price Change: No changes
- Days on market: 84 days
| Date | Price | Event |
|---|---|---|
2/2/2022 | $470,000 | Sold by Brown Harris Stevens |
12/6/2021 | $499,000 | In contract |
9/13/2021 | $499,000 | Listed by Brown Harris Stevens |
9/9/2021 | $540,550 | |
6/25/2021 | $540,550 |
Past listing photos
Sign in to take a closer look at how this home compares to similar homes.
Explore Lower East Side
Transit
| Location | Distance |
|---|---|
FJMZat Essex St | 0.36 miles |
FJMZat Delancey St | 0.4 miles |
Fat East Broadway | 0.43 miles |
BDat Grand St | 0.65 miles |
Fat 2nd Av | 0.65 miles |
About Lower East Side
Rental prices shown are base rent before any fees. Visit listings for cost and fees breakdown.
SalesMedian asking price
1 bed
$825K
RentalsMedian asking base rent
1 bed
$3,895
The narrow streets of the Lower East Side were once lined with tenement buildings, shirt factories and bialy shops. Although a few vestiges of the neighborhood's immigrant heritage remain, many of the tenement buildings have been updated and now offer relatively affordable rental options to young New Yorkers looking to live right in the thick of Downtown Manhattan.
There's no getting around it - the LES is a major nightlife destination. In this part of the city, last call is late and often negotiable -- especially if you're a regular. On weekend nights, the neighborhood is packed as crowds overflow from the local bars and take to the streets in search of a late-night falafel fix before heading onto the next party. During the day, the neighborhood chills out as residents nurse their hangovers or head to work slowly after stopping at one of the area's many trendy juice bars or coffee shops.















































































































