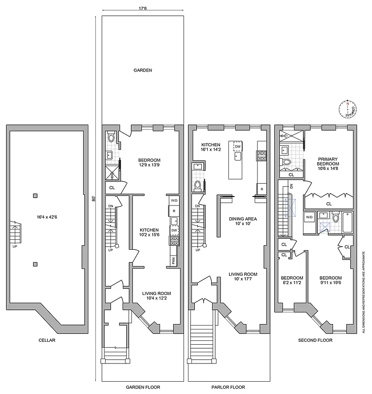
2,300 ft²
$865 per ft²
10 rooms
4 beds
3.5 baths
Two-family home
- Stuyvesant Heights
Resale
recorded sale
Sold on 5/15/2024
Verified by closing records
Last listed for $2,100,000
Seller's agents
This home has been saved by 45 users.
Listing by Compass, Corporate Broker, 110 5th Avenue, New York, NY 10011
Common charges
Not applicable
Estimated payment
$10,777/mo
Legal disclaimerAll calculations are estimates provided by StreetEasy for informational purposes only. Actual amounts or financing terms may vary. Please contact your mortgage provider for specifics.Taxes
$557/mo
Tax abatement
No info
About
Seller’s agent
Buyer’s agent
description
513 Decatur Street, originally constructed in 1899, has been meticulously updated, presenting an exquisite blend of historic charm and contemporary sophistication. This two-family brownstone boasts 4 bedrooms, 3 full bathrooms, 1 powder room, and an expansive garden, making it a truly exceptional residence.
The home preserves its timeless allure with original parquet wood floors, wainscotting, picture rails, and magnificent moldings throughout.
Policies
Sorry, policy info isn’t available right now. Check back later.
Home features
Central air
Dishwasher
Hardwood floors
Washer/dryer
Building amenities
Services and facilities
Laundry in building
Wellness and recreation
No info on wellness and recreation
Shared outdoor space
Courtyard
About the building
513 Decatur Street
513 Decatur Street, Brooklyn, NY 11233
2 units
3 stories
1899 built
For sale
0 available units for saleFor rent
0 available units for rentDocuments and permits
View documents and permitsProperty history
- Price Change: No changes
- Days on market: 48 daysThis is the number of days the listing has been on StreetEasy.
| Date | Price | Event |
|---|---|---|
5/15/2024 | $1,990,000 | Sold by Compass |
3/27/2024 | $2,100,000 | In contract |
2/8/2024 | $2,100,000 | Listed by Compass |
Past listing photos
Sign in to take a closer look at how this home compares to similar homes.
Explore Stuyvesant Heights
Transit
| Location | Distance |
|---|---|
ACat Ralph Av | 0.26 miles |
ACat Utica Av | 0.42 miles |
Jat Halsey St | 0.43 miles |
JZat Gates Av | 0.5 miles |
ACat Rockaway Av | 0.57 miles |


































































































































































































