$3,100
For Rent
Base rent only. For total monthly price and additional fees, see .
Rented 10/18/2021
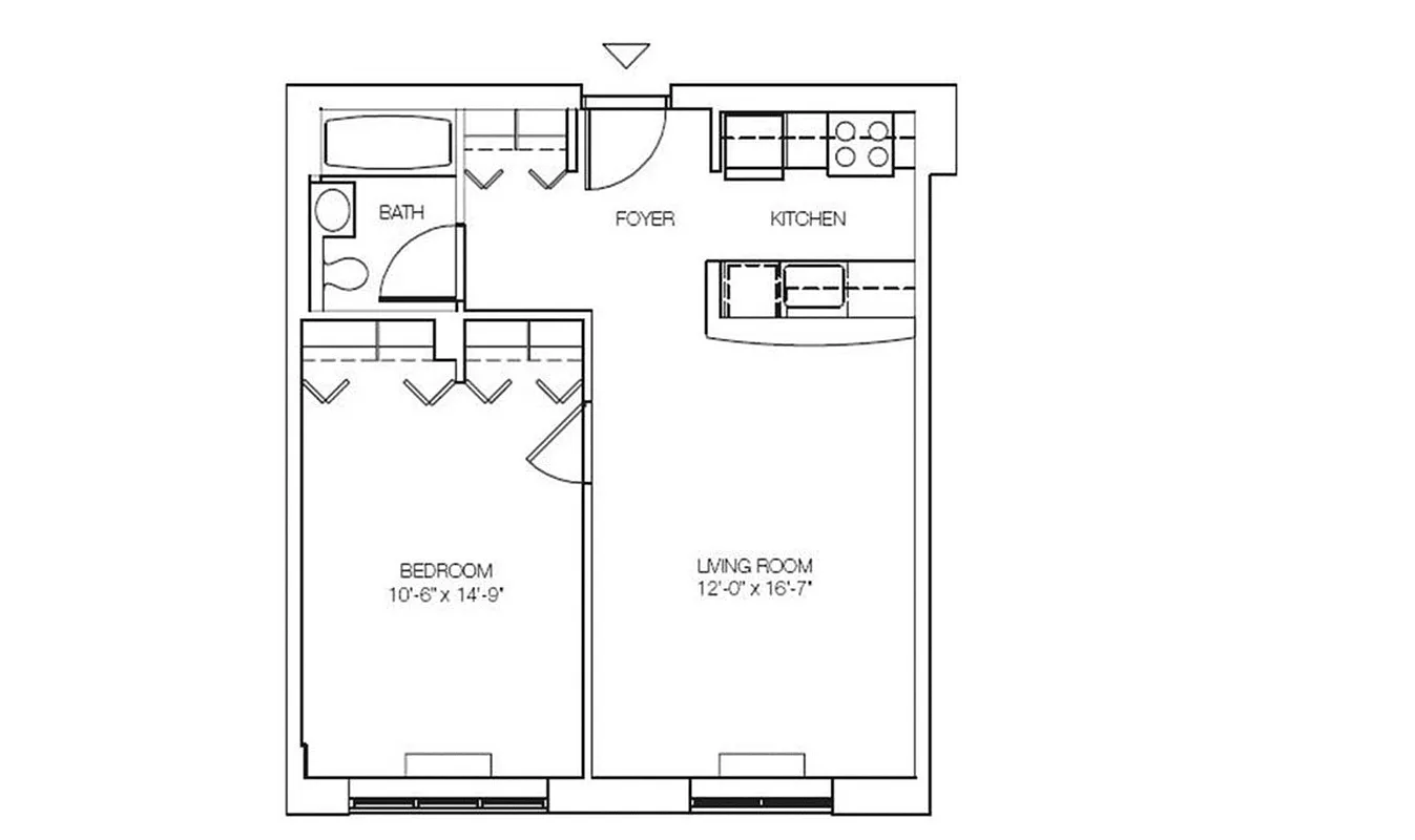
- ft²
1 room
1 bed
1 bath
Condo
- Hell's Kitchen
Under NYC law, you can't be charged a broker fee if you didn't hire a broker.
Listed By
This home has been saved by 23 users.
Listing by Corcoran, Limited Liability Broker, 590 Madison Avenue, New York, NY 10022
Unavailable
Rented on 10/18/2021
Days on market
3 days
Last price change
No changes
About
Come see this GREAT 1 Bed Condo in this amenities packed building! Bright sunlight permeates this south-facing FURNISHED (or unfurnished) apartment. You will enjoy the large open kitchen with island counter, FULL-SIZED stainless steel appliances including over the range microwave and dishwasher, granite counters and great cabinet space.
Policies
Pets allowed
Cats and dogs allowed
Home features
Dishwasher
Furnished
Hardwood floors
View
City
Building amenities
Services and facilities
Bike room
Doorman
Full-time
Elevator
Laundry in building
Live-in super
Wheelchair access
Wellness and recreation
Gym
Media room
Shared outdoor space
Courtyard
About the building
516 West 47th Street
516 West 47th Street, New York, NY 10036
149 units
7 stories
2003 built
Property history
Prices shown are base rent only. For total monthly price and additional fees, see .
| Date | Base rent | Event |
|---|---|---|
10/18/2021 | $3,100 | Rented by Corcoran |
9/22/2021 | $3,100 | In contract |
9/20/2021 | $3,100 | Temporarily off market |
9/17/2021 | $3,100 | Listed by Corcoran |
Past listing photos
Sign in to take a closer look at how this home compares to similar homes.
Explore Hell's Kitchen
Transit
| Location | Distance |
|---|---|
ACENQRWS1237at Times Squareâ42nd St | 0.35 miles |
CEat 50th St | 0.36 miles |
1at 50th St | 0.49 miles |
NRWat 49th St | 0.5 miles |
Ferryat W 39th Street Ferry Landing | 0.51 miles |
Similar homes
Prices shown are base rent only and don't include any fees. Visit each listing to see a complete cost breakdown.
Similar Homes looks at ad spend and other factors like location, price, and number of beds and baths.































































