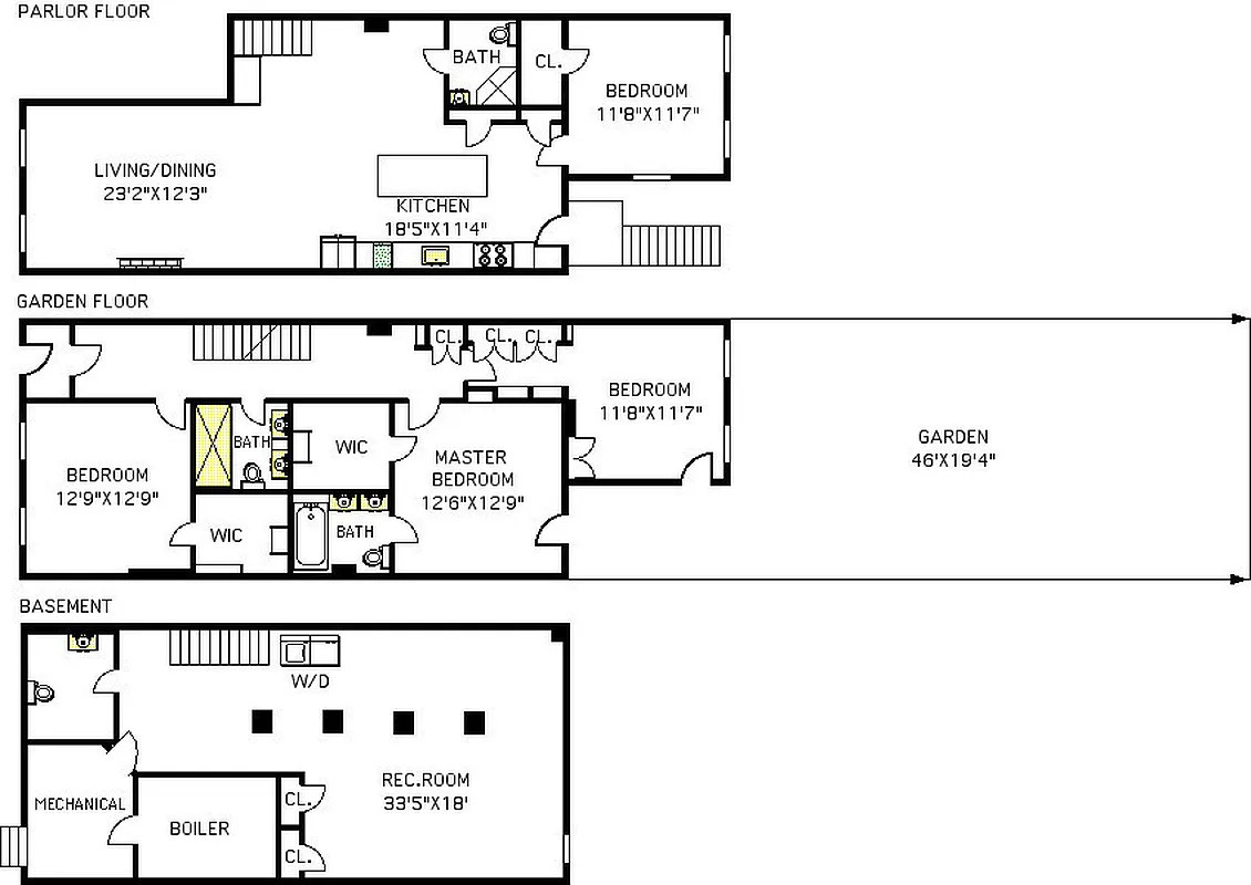
2,628 ft²
$499 per ft²
6 rooms
4 beds
4 baths
Condo
- Stuyvesant Heights
recorded sale
Sold on 3/22/2016
Verified by closing records
Last listed for $1,295,000
Seller's agents
Mary Klein
Corcoran
Emily Shepodd
Corcoran
This home has been saved by 29 users.
Listing by Corcoran, Limited Liability Broker, 1 Pierrepont Plz, Brooklyn, NY 11201 | Brokerage Listing ID: 3468716
Common charges
$570/mo
Estimated payment
$7,930/mo
Taxes
$472/mo
Tax abatement
No info
About
Seller’s agent
Buyer’s agent
description
This meticulously restored and renovated brownstone condo offers three floors of perfectly finished living spacewith four bedrooms and four bathrooms, more than many entire townhouses. Enter at the garden level into a spacious and inviting foyer with great built-ins and stunningly refinished original woodwork.
Policies
Sorry, policy info isn’t available right now. Check back later.
Home features
Fireplace
Private outdoor space
Patio
Washer/dryer
Building amenities
No info on building amenities
About the building
518 Madison Street
518 Madison Street, Brooklyn, NY 11221
2 units
4 stories
1901 built
For sale
0 available units for saleFor rent
1 available units for rentDocuments and permits
View documents and permitsProperty history
- Price Change: No changes
- Days on market: 104 days
| Date | Price | Event |
|---|---|---|
3/22/2016 | $1,313,359 | Sold by Corcoran |
3/23/2016 | $1,295,000 | No longer available |
9/22/2015 | $1,295,000 | In contract |
6/10/2015 | $1,295,000 | Listed by Corcoran |
10/11/2014 | $1,295,000 |
Past listing photos
Sign in to take a closer look at how this home compares to similar homes.
Explore Stuyvesant Heights
Transit
| Location | Distance |
|---|---|
ACat Kingston–Throop | 0.44 miles |
ACat Utica Av | 0.53 miles |
Jat Kosciusko St | 0.67 miles |
ACat Nostrand Av | 0.74 miles |
JMZat Myrtle Av | 0.76 miles |




































































































