- ft²
3 rooms
1 bed
1 bath
Co-op
- Lenox Hill
Resale
recorded sale
Sold on 7/14/2021
Verified by closing records
Last listed for $469,000
Seller's agent
This home has been saved by 88 users.
Listing by Brown Harris Stevens, Real Estate Principal Office, 445 Park Avenue, New York, NY 10022
Maintenance fees
$1,233/mo
Estimated payment
$3,317/mo
Legal disclaimerAll calculations are estimates provided by StreetEasy for informational purposes only. Actual amounts or financing terms may vary. Please contact your mortgage provider for specifics.Taxes
Included in maintenance fees
Tax abatement
No info
About
Seller’s agent
Buyer’s agent
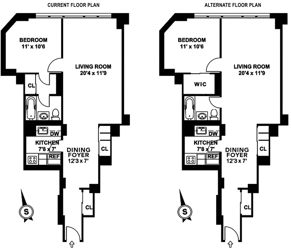
description
PRICED TO SELL!
Come see this loft-like one bedroom apartment which is in excellent condition and listed at an incredible price. The bedroom currently features a queen-sized bed. This sunny, south-facing gem has a newly renovated kitchen with stainless steel appliances, glass tile back splash, and white quartz counter tops.
Policies
Co-purchase allowed
Guarantors accepted
Pets allowed
Cats and dogs allowed
Pied-a-terre allowed
Smoke-free
Sublets allowed
Home features
Central air
Dishwasher
Hardwood floors
View
City
Building amenities
Services and facilities
Bike room
Concierge
Doorman
Full-time
Elevator
Laundry in building
Live-in super
Package room
Parking
Garage
Wellness and recreation
No info on wellness and recreation
Shared outdoor space
Courtyard
About the building
520 East 72nd Street
520 East 72nd Street, New York, NY 10021
242 units
18 stories
1964 built
For sale
5 available units for saleFor rent
0 available units for rentDocuments and permits
View documents and permitsProperty history
- Price Change: No changes
- Days on market: 21 daysThis is the number of days the listing has been on StreetEasy.
| Date | Price | Event |
|---|---|---|
7/14/2021 | $465,000 | Sold by Brown Harris Stevens |
3/12/2021 | $469,000 | In contract |
2/19/2021 | $469,000 | Listed by Brown Harris Stevens |
3/9/2021 | $475,000 | |
12/8/2020 | $475,000 |
Past listing photos
Sign in to take a closer look at how this home compares to similar homes.
Explore Lenox Hill
Transit
| Location | Distance |
|---|---|
Qat 72nd St | 0.35 miles |
6at 68th St–Hunter College | 0.59 miles |
6at 77th St | 0.63 miles |
FQat Lexington Av/63rd St | 0.71 miles |
Qat 86th St | 0.71 miles |


























































































