$825,000
For Sale
No longer available 1/22/2025
- ft²
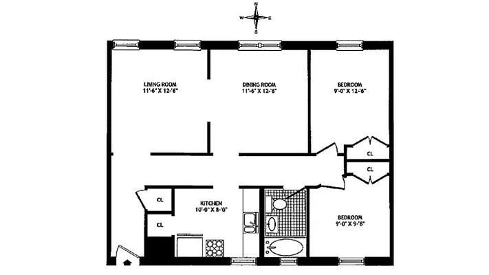
5 rooms
2 beds
1 bath
Co-op
- Morningside Heights
Resale
Seller's agent
This home has been saved by 130 users.
Listing by Corcoran, Limited Liability Broker, 221 Columbus Avenue, New York, NY 10023
Maintenance fees
$1,738/mo
Estimated payment
$5,942/mo
Legal disclaimerAll calculations are estimates provided by StreetEasy for informational purposes only. Actual amounts or financing terms may vary. Please contact your mortgage provider for specifics.Taxes
Included in maintenance fees
Tax abatement
No info
About
Seller’s agent
description
Featured in NY Magazine's Curbed on 10/2! Don’t miss this rare opportunity to own a beautifully renovated prewar classic five room apartment in superb condition on a quiet, tree-lined block in Morningside Heights. This classic & graciously flowing layout features a large entry foyer with coat closet, 2 bedrooms, a side-by-side living room/formal wood-paneled dining room, a renovated bathroom with...
Policies
Pets allowed
Cats and dogs allowed
Home features
Dishwasher
Hardwood floors
Building amenities
Services and facilities
Bike room
Doorman
Full-time
Elevator
Laundry in building
Live-in super
Wellness and recreation
No info on wellness and recreation
Shared outdoor space
No info on shared outdoor space
About the building
523 West 121st Street
523 West 121st Street, New York, NY 10027
24 units
6 stories
1926 built
For sale
0 available units for saleFor rent
0 available units for rentDocuments and permits
View documents and permitsProperty history
- Price Change: No changes
- Days on market: 117 daysThis is the number of days the listing has been on StreetEasy.
| Date | Price | Event |
|---|---|---|
4/23/2025 | $825,000 | No longer available |
1/22/2025 | $825,000 | Temporarily off market |
9/27/2024 | $825,000 | Listed by Corcoran |
8/11/2011 | $545,000 | |
4/2/2011 | $545,000 |
Past listing photos
Sign in to take a closer look at how this home compares to similar homes.
Explore Morningside Heights
Transit
| Location | Distance |
|---|---|
1at 116th St–Columbia University | 0.25 miles |
1at 125th St | 0.31 miles |
ABCDat 125th St | 0.39 miles |
BCat 116th St | 0.5 miles |
1at Cathedral Parkway–110th St | 0.56 miles |
About Morningside Heights
Rental prices shown are base rent before any fees. Visit listings for cost and fees breakdown.
SalesMedian asking price
2 beds
$937K
RentalsMedian asking base rent
2 beds
$7,000
In many ways, Morningside Heights reminds of Park Slope or the nearby Upper West Side, especially in its ample green space, shady streets, and laid-back, homey feel. What sets Morningside Heights apart, however, is the number of colleges and universities in and near the area.
Learn more about Morningside Heights













































































































































