View this home virtually
2,250 ft²
$1,444 per ft²
5 rooms
3 beds
3 baths
Condo
- Soho
Resale
reported sale
Sold on 8/31/2021
Not yet verified by closing records
Seller's agent
This home has been saved by 252 users.
Listing by Brown Harris Stevens, Real Estate Principal Office
Common charges
$1,327/mo
Estimated payment
$19,391/mo
Legal disclaimerAll calculations are estimates provided by StreetEasy for informational purposes only. Actual amounts or financing terms may vary. Please contact your mortgage provider for specifics.Taxes
$1,630/mo
Tax abatement
No info
About
Seller’s agent
description
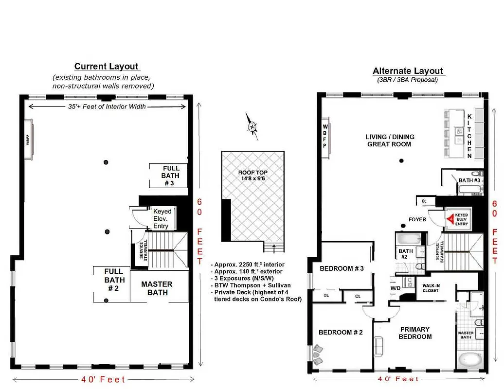
Full-Floor SoHo Condo Loft with WBFP || 1st Time on market in 30 years - - please reach listing agent (Joe Monteleone) directly for further details or to arrange a viewing.
Extraordinary opportunity to create your SoHo dream home! Entire floor Condominium Loft quietly situated on the Western edge of SoHo (Sullivan/Thompson) with uncommonly wide 40' x 60' footprint, WBFP, keyed elevator, low monthly costs, high ceilings, cast-iron columns, and access to private outdoor space.
Policies
Sorry, policy info isn’t available right now. Check back later.
Home features
Central air
Dishwasher
Fireplace
Wood
Hardwood floors
Private outdoor space
Roof deck
View
City, Skyline
Washer/dryer
Building amenities
Services and facilities
Elevator
Laundry in building
Wheelchair access
Wellness and recreation
No info on wellness and recreation
Shared outdoor space
Roof deck
About the building
525 Broome Street
525 Broome Street, New York, NY 10013
5 units
6 stories
1950 built
For sale
0 available units for saleFor rent
0 available units for rentDocuments and permits
View documents and permitsProperty history
- Price Change: No changes
- Days on market: 46 daysThis is the number of days the listing has been on StreetEasy.
| Date | Price | Event |
|---|---|---|
8/31/2021 | $3,250,000 | Sold by Brown Harris Stevens |
4/20/2021 | $3,250,000 | In contract |
3/5/2021 | $3,250,000 | Listed by Brown Harris Stevens |
Past listing photos
Sign in to take a closer look at how this home compares to similar homes.
Explore Soho
Transit
| Location | Distance |
|---|---|
CEat Spring St | 0.13 miles |
1at Canal St | 0.13 miles |
ACEat Canal St | 0.13 miles |
1at Houston St | 0.28 miles |
JNQRWZ6at Canal St | 0.3 miles |
About Soho
Rental prices shown are base rent before any fees. Visit listings for cost and fees breakdown.
SalesMedian asking price
3 beds
$5.15M
RentalsMedian asking base rent
3 beds
$12,995
SoHo has some of the best people-watching in Manhattan, as it is a mecca for the trendy, sophisticated downtown elite. The north-south running streets are often sites of fashion shoots as well as home to upscale European boutiques. The east-west running streets are busier and always clogged with vendors selling everything from iPhone cases to incense. One you hit Broadway, you could be in just about any mall in America with retail chains, tourists, teenagers, and disgruntled New Yorkers dominating the avenue. The energy in SoHo is fast-paced and all hustle and bustle; it is a quintessentially vibrant New York neighborhood, but certainly not for the faint-of-heart or those looking for some peace and quiet.
Learn more about Soho

















































































































































