$394,900
For Sale
No longer available 6/13/2025
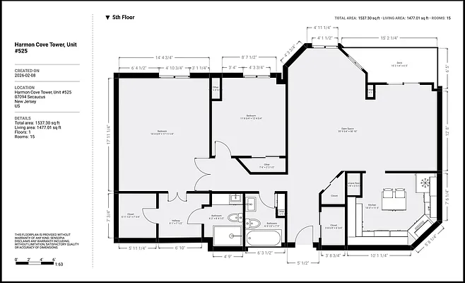
1,379 ft²
$286 per ft²
2 rooms
2 beds
2 baths
Condo
- Secaucus
Seller's agent
Ruchika Gogia
RE/MAX SELECT
This home has been saved by 8 users.
Listing by RE/MAX SELECT | MLS #: 250011437
Common charges
No info
Estimated payment
$2,033/mo
Legal disclaimerAll calculations are estimates provided by StreetEasy for informational purposes only. Actual amounts or financing terms may vary. Please contact your mortgage provider for specifics.Taxes
No info
Tax abatement
No info
About
Seller’s agent
description
Welcome to your new home and haven in Harmon Cove Towers! Enjoy the tranquility of this spacious, meticulously maintained 2 Bedrooms/2 full Bathrooms simplex with easy access to the vibrant energy of NYC! This unit offers 1379 Sq ft of open living space on the 5th floor with breathtaking NYC skyline views & a wealth of luxurious amenities.
Policies
Sorry, policy info isn’t available right now. Check back later.
Home features
Central air
Dishwasher
Private outdoor space
Terrace
Washer/dryer
Building amenities
Services and facilities
Doorman
Elevator
Parking
Wellness and recreation
Children's playroom
Gym
Shared outdoor space
No info on shared outdoor space
About the building
525 Harmon Cove Tower
525 Harmon Cove Tower, Secaucus, NJ 07094
- units
- stories
1980 built
Property history
- Price Change: No changes
- Days on market: 45 daysThis is the number of days the listing has been on StreetEasy.
| Date | Price | Event |
|---|---|---|
6/13/2025 | $394,900 | No longer available |
4/29/2025 | $394,900 | Listed by RE/MAX SELECT |
Sign in to take a closer look at how this home compares to similar homes.

































































































































































