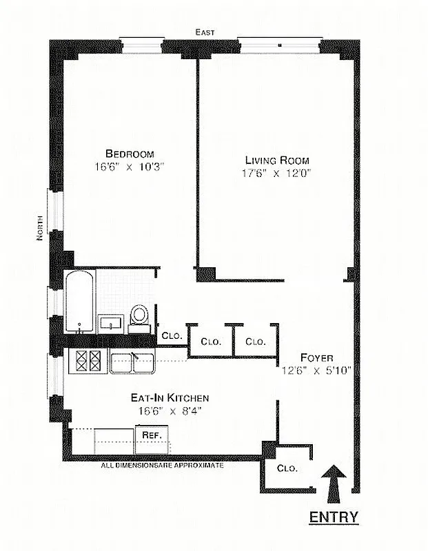
800 ft²
$711 per ft²
3 rooms
1 bed
1 bath
Co-op
- Lower East Side
Resale
reported sale
Sold on 3/16/2021
Not yet verified by closing records
Seller's agent
This home has been saved by 35 users.
Listing by Ira E Turkel, LREB, Individual Broker, 500 Grand Street, New York, NY 10002
Maintenance fees
$850/mo
Estimated payment
$3,994/mo
Taxes
Included in maintenance fees
Tax abatement
No info
About
Seller’s agent
description
Very good deal. Very motivated seller.
Largest one bedroom layout Very bright apartment . Beautiful Bridge views. Nicely renovated. Easily converts to a two bedroom. Large eat-in kitchen. very large bedroom with double exposure overlooking garden, river and bridge views. Loads of closet space Hardwood floors throughout.
Policies
Co-purchase allowed
Gifts allowed
Guarantors accepted
Parents buying allowed
Pets allowed
Cats and dogs allowed
Pied-a-terre allowed
Home features
Hardwood floors
View
City, Park, Water
Building amenities
Services and facilities
Bike room
Doorman
Elevator
Laundry in building
Live-in super
Parking
Garage
Wellness and recreation
Children's playroom
Gym
Shared outdoor space
Courtyard
About the building
550 Grand Street
550 Grand Street, New York, NY 10002
Complex:
Hillman Coop- units
- stories
- built
For sale
6 available units for saleFor rent
1 available units for rentDocuments and permits
View documents and permitsProperty history
- Price Change: No changes
- Days on market: 29 days
| Date | Price | Event |
|---|---|---|
3/16/2021 | $569,000 | Sold by Ira E Turkel, LREB |
11/20/2020 | $569,000 | In contract |
10/22/2020 | $569,000 | Listed by Ira E Turkel, LREB |
Sign in to take a closer look at how this home compares to similar homes.
Explore Lower East Side
Transit
| Location | Distance |
|---|---|
FJMZat Essex St | 0.43 miles |
FJMZat Delancey St | 0.47 miles |
Fat East Broadway | 0.49 miles |
Fat 2nd Av | 0.71 miles |
BDat Grand St | 0.71 miles |
About Lower East Side
Rental prices shown are base rent before any fees. Visit listings for cost and fees breakdown.
SalesMedian asking price
1 bed
$786K
RentalsMedian asking base rent
1 bed
$3,795
The narrow streets of the Lower East Side were once lined with tenement buildings, shirt factories and bialy shops. Although a few vestiges of the neighborhood's immigrant heritage remain, many of the tenement buildings have been updated and now offer relatively affordable rental options to young New Yorkers looking to live right in the thick of Downtown Manhattan.
There's no getting around it - the LES is a major nightlife destination. In this part of the city, last call is late and often negotiable -- especially if you're a regular. On weekend nights, the neighborhood is packed as crowds overflow from the local bars and take to the streets in search of a late-night falafel fix before heading onto the next party. During the day, the neighborhood chills out as residents nurse their hangovers or head to work slowly after stopping at one of the area's many trendy juice bars or coffee shops.


























































































































