- ft²
4 rooms
2 beds
2 baths
Co-op
- Boerum Hill
recorded sale
Sold on 2/24/2020
Verified by closing records
Last listed for $850,000
Seller's agents
This home has been saved by 98 users.
Listing by Corcoran, Limited Liability Broker, 1 Pierrepont Plz, Brooklyn, NY 11201 | Brokerage Listing ID: 5924978
Maintenance fees
$770/mo
Estimated payment
$5,291/mo
Taxes
Included in maintenance fees
Tax abatement
No info
About
Seller’s agent
Buyer’s agent
description
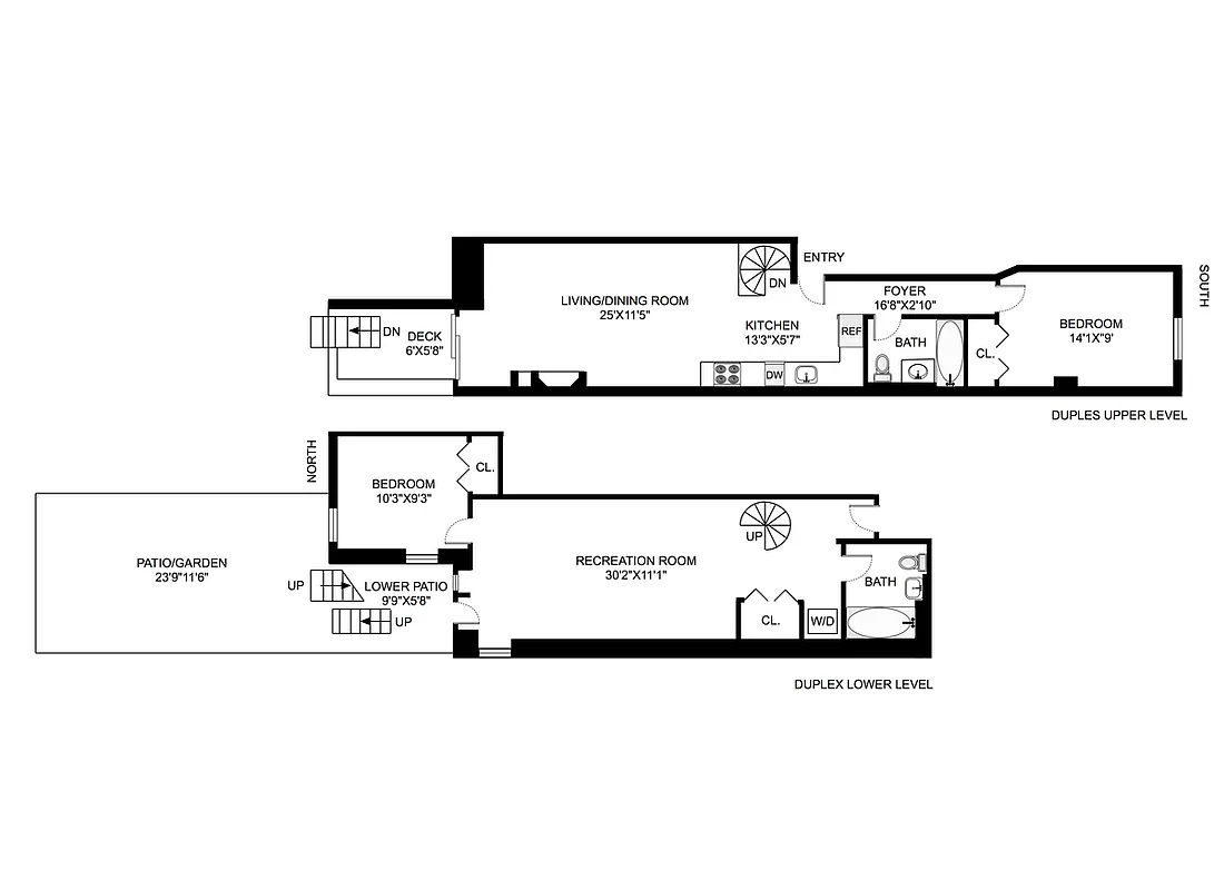
Offering over 1100 square feet spanning two floors, a private backyard, a flexible layout, and a superbly convenient location, this duplex coop on the Boerum Hill/ Park Slope border is a great find! The spacious living room boasts a working WOOD-BURNING FIREPLACE and plenty of space for a separate dining area. The open kitchen has great storage and workspace and features wood cabinetry, a subway tile backsplash, an over-the-range microwave, and updated stainless steel appliances.
Policies
Pets allowed
Cats and dogs allowed
Home features
Dishwasher
Fireplace
Private outdoor space
Garden
Building amenities
No info on building amenities
About the building
559 Warren Street
559 Warren Street, Brooklyn, NY 11217
8 units
4 stories
1931 built
For sale
0 available units for saleFor rent
0 available units for rentDocuments and permits
View documents and permitsProperty history
- Price Change: No changes
- Days on market: 65 days
| Date | Price | Event |
|---|---|---|
2/24/2020 | $901,000 | Sold by Corcoran |
11/20/2019 | $850,000 | In contract |
10/30/2019 | $850,000 | Listed by Corcoran |
10/29/2019 | $899,000 | |
10/24/2019 | $899,000 |
Past listing photos
Sign in to take a closer look at how this home compares to similar homes.
Explore Boerum Hill
Transit
| Location | Distance |
|---|---|
BDNQR2345at Atlantic Av–Barclays Ctr | 0.21 miles |
Rat Union St | 0.34 miles |
23at Bergen St | 0.35 miles |
LIRRat Atlantic Terminal | 0.35 miles |
2345at Nevins St | 0.42 miles |
About Boerum Hill
Rental prices shown are base rent before any fees. Visit listings for cost and fees breakdown.
SalesMedian asking price
2 beds
$1.55M
RentalsMedian asking base rent
2 beds
$5,425
Energetic and inviting, Boerum Hill continues its run as one of New York City's most desirable neighborhoods, all while remaining a secret quietly shared amongst its happy residents. Its appeal and vibrancy stem from its housing stock. Handsome Greek revival and Italianate townhouses line the wide, tree-lined streets. These beautiful brick and limestone buildings have long been a mecca for Brooklynites seeking an enclave close to Downtown Brooklyn and lower Manhattan — but far from crowds and highrises.
Main drags like Bergen Street, Atlantic Avenue, and Smith Street are peppered with charming boutiques like Collier West in addition to welcoming cafes, bars, and restaurants, including Rucola, French Louie, and Bacchus, to name a few. Fans of new construction will find new condo developments too. Saint Marks Place, The Hendrick, The Boerum, and The Bergen have expanded buyers' opportunities. Renters will also find plenty of options here in a broad range of prices, from the genuinely affordable to the luxurious.



































































































