View this home virtually
$3,750
For Rent
Base rent only. For total monthly price and additional fees, see .
- ft²
5 rooms
2 beds
2 baths
Rental unit
- Corona
Under NYC law, you can't be charged a broker fee if you didn't hire a broker.
Listed By
Listing by EASYRENT REALTY LLC, Real Estate Principal Office, 405 Lexington Avenue, New York, NY 10174
Available
Available now
Days on market
Listed today
Last price change
No changes
About
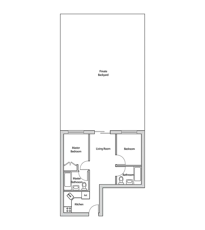
Welcome to 55-44 97th Place – a well-maintained elevator building nestled on a quiet residential block in the heart of Elmhurst. This 6-story building offers a clean, secure, and convenient living environment with an on-site laundry room and responsive management.
Unit 1A is a bright and generously sized two-bedroom, two-bathroom apartment featuring a large private courtyard.
Policies
Sorry, policy info isn’t available right now. Check back later.
Home features
Central air
Dishwasher
Hardwood floors
Building amenities
Services and facilities
Elevator
Laundry in building
Wellness and recreation
No info on wellness and recreation
Shared outdoor space
Courtyard
About the building
55-44 97th Place
55-44 97th Place, Corona, NY 11368
10 units
6 stories
2020 built
Property history
Prices shown are base rent only. For total monthly price and additional fees, see .
| Date | Base rent | Event |
|---|---|---|
3/12/2026 | $3,750 | Listed by EASYRENT REALTY LLC |
Sign in to take a closer look at how this home compares to similar homes.
Explore Corona
Transit
| Location | Distance |
|---|---|
MRat Woodhaven Blvd | 0.4 miles |
MRat 63rd Drive–Rego Park | 0.53 miles |
MRat Grand Av–Newtown | 0.68 miles |
7at 103rd St | 0.84 miles |
7at Junction Blvd | 0.85 miles |
Similar homes
Prices shown are base rent only and don't include any fees. Visit each listing to see a complete cost breakdown.
Similar Homes looks at ad spend and other factors like location, price, and number of beds and baths.



















































































































